Spacious garden, strong extension potential — a family project in a well‑connected Surbiton street..
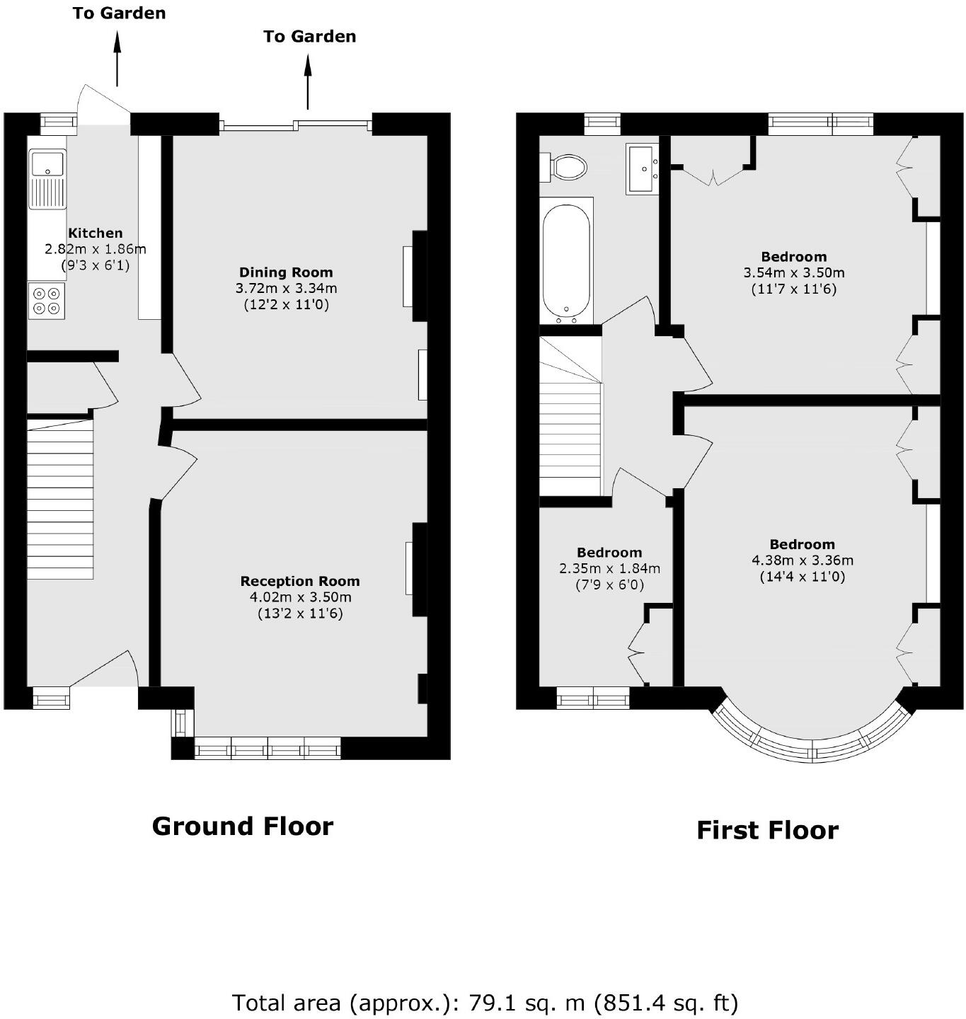
- Three bedrooms plus family bathroom, bright bay-fronted reception
- Large rear garden, good scope for outdoor living and play
- Potential to extend rear and loft (subject to planning permission)
- Interior fittings dated; requires modernisation throughout
- Solid brick walls with assumed no insulation; energy upgrades likely
- Drive/forecourt area provides private off-street space
- Crime levels in the area reported above average
- Freehold, council tax band D; excellent mobile and fast broadband
A solid 1930s terraced family home on Cranborne Avenue offering straightforward living and genuine scope to add value. The house has three bedrooms, a bright bay-fronted reception room, separate dining room and a large rear garden — ideal for family life and outdoor play. Conveniently placed just over half a mile from Tolworth station with easy A3 access for commuting.
The property is best suited to buyers seeking a project: interior fittings are dated and the house would benefit from modernisation throughout. There is clear potential to extend to the rear and into the loft (subject to planning), which would significantly increase living space and resale value. Services are mains gas with a boiler and radiators; glazing is double but install date is unknown.
Practical points to note: the brick walls are original with no known cavity insulation, so energy improvements may be needed. Crime in the immediate area is reported above average, although the neighbourhood is described as peaceful and family-friendly with several well-rated local schools nearby. Tenure is freehold with moderate council tax band D.
Overall, this is a mid-sized, characterful 1930s home offering a large garden and clear refurbishment/extension upside. It will suit a growing family or purchaser comfortable undertaking improvements to modernise and personalise the property.
4 bedroom house for sale in Cranborne Avenue, Surbiton, KT6 — £599,950 • 4 bed • 2 bath • 1098 ft²
3 bedroom terraced house for sale in Hazel Bank, SURBITON, KT5 — £500,000 • 3 bed • 1 bath • 814 ft²
3 bedroom terraced house for sale in Barnsbury Crescent, Surbiton, KT5 — £420,000 • 3 bed • 1 bath • 700 ft²
4 bedroom semi-detached house for sale in Lynton Close, Chessington, KT9 — £600,000 • 4 bed • 1 bath • 892 ft²
4 bedroom semi-detached house for sale in Tolworth Rise North, Surbiton, KT5 — £675,000 • 4 bed • 2 bath • 1500 ft²
3 bedroom semi-detached house for sale in Hamilton Avenue, Surbiton, KT6 — £699,950 • 3 bed • 1 bath • 1025 ft²






























