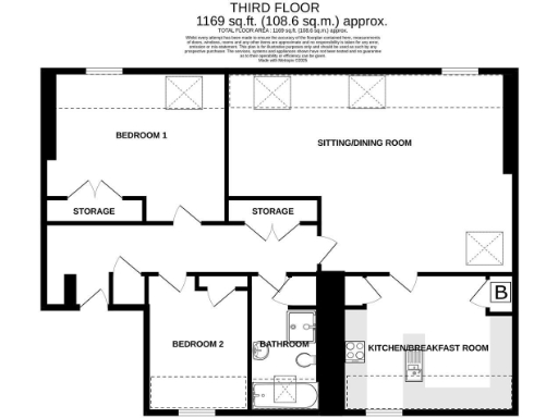
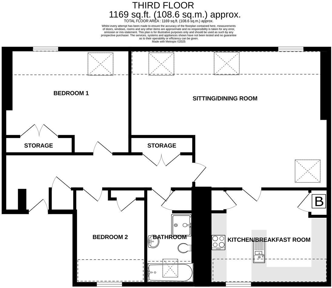
**Standout Features:**
- Spacious 1,169 sq ft third-floor apartment in a historic Grade II listed building
- Two well-proportioned bedrooms with built-in storage
- Modern kitchen/breakfast room with integrated appliances
- Open-plan sitting/dining room with natural light from multiple Velux windows
- Allocated off-street parking in central Dorchester
- Chain-free, with a long lease remaining (974 years)
**Concerns:**
- High crime rate in the area
- Annual service charge of £1,488
- Flood risk—further inquiries recommended
**Summary:**
Discover the charm of this uniquely positioned third-floor apartment set within a stunning Grade II listed building, perfectly situated in the heart of Dorchester on High East Street. Offering a spacious 1,169 square feet of well-designed living space, this two-bedroom, one-bathroom home is ideal for first-time buyers or small families looking for a blend of comfort and modernity. The open-plan sitting and dining room exudes brightness, with original exposed beams adding character, while the contemporary kitchen invites you to enjoy casual meals or entertaining guests.
With the added perk of allocated off-street parking, this residence provides both convenience and character. While the high crime rate in the area may be a drawback, the vibrant local amenities, including shops, restaurants, and historical sites, create a lively community atmosphere. Catchment schools are well-regarded, making it an excellent choice for families. With a long lease and no onward chain, this apartment offers a rare opportunity to immerse yourself in the rich history and lifestyle of Dorchester—act quickly, as this property won't last long on the market!
2 bedroom flat for sale in High East Street, DORCHESTER, DT1 — £250,000 • 2 bed • 1 bath • 656 ft²
2 bedroom apartment for sale in Princes Street, Dorchester, DT1 — £175,000 • 2 bed • 1 bath • 689 ft²
2 bedroom apartment for sale in High West Street, Dorchester, DT1 — £295,000 • 2 bed • 1 bath • 1006 ft²
2 bedroom apartment for sale in Durngate Street, Dorchester, DT1 — £200,000 • 2 bed • 1 bath • 539 ft²
3 bedroom apartment for sale in Stratton House, 59-60 High West Street, Dorchester, Dorset, DT1 — £500,000 • 3 bed • 3 bath • 3000 ft²
2 bedroom apartment for sale in High West Street, Dorchester, DT1 — £300,000 • 2 bed • 2 bath • 1132 ft²


















































