**Standout Features:**
- Freehold Grade II Listed Public House
- Rental income of £23,400 per annum, yielding 6.69%
- Separate access for upper floors, offering development potential STTP
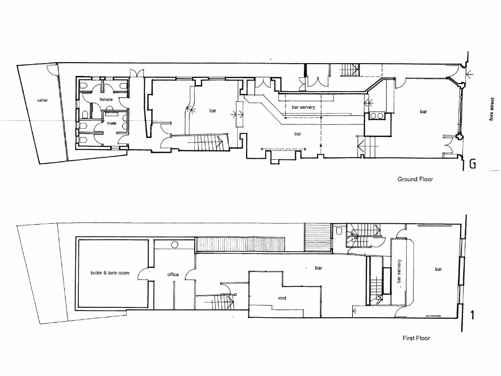
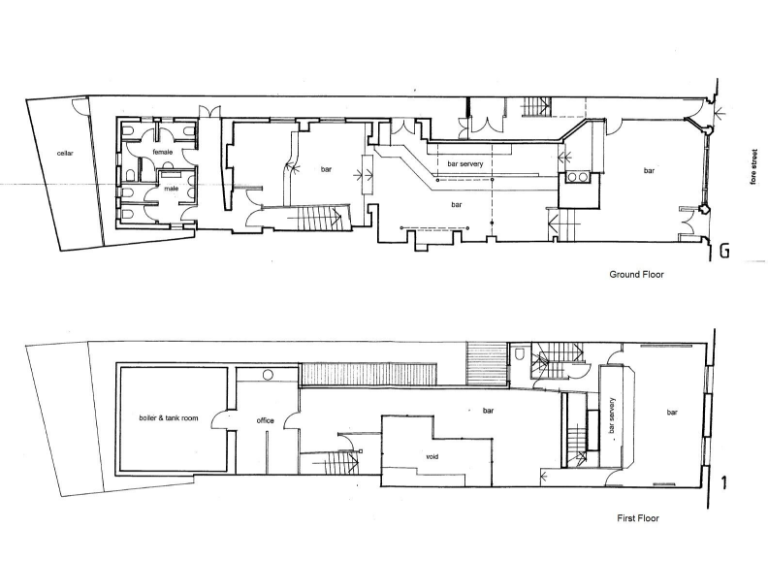
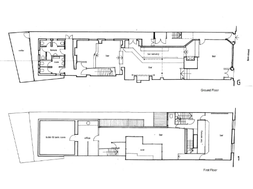
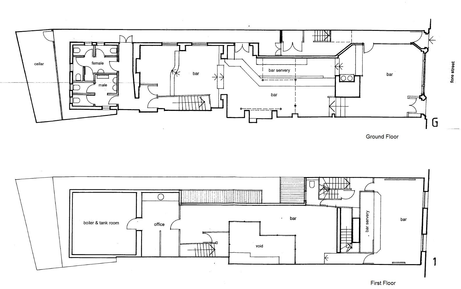
- Total area of 4,284 sq ft with multiple bar sections and residential space above
- Prime location on Fore Street near various amenities and foot traffic
**Potential Downsides:**
- Currently let on a 3-year lease with no break options, which may complicate financing
- Requires some renovation to optimize the space
This Grade II Listed Public House on Fore Street in Exeter offers a unique investment opportunity, blending historical charm with modern revenue potential. With a solid yearly rental income of £23,400 and an attractive Gross Initial Yield of 6.69%, this property is well-positioned for steady cash flow. The pub comprises an expansive ground floor with multiple bar sections, complemented by ancillary living accommodation comprising two bedrooms, a living room, and a kitchen on the upper floors, which boast separate access for future development possibilities, subject to planning.
Nestled in a vibrant area with a mix of local businesses and amenities, the property's central location ensures high foot traffic, making it ideal for attracting patrons. Although the building may require some renovations, its inherent character invites customization. With low crime rates and excellent local transport links, this investment is perfect for savvy investors or buyers looking to exploit its potential in a thriving city setting. Don't miss out on this exclusive opportunity!
Pub for sale in Iconic Exeter Bar positioned a stone’s throw from Exeter Central Station, Devon, EX4 — £50,000 • 1 bed • 1 bath
Bar / nightclub for sale in EX4,162-163 Fore Street, Exeter, Devon EX4 3AT, EX4 — POA • 1 bed • 1 bath • 1309 ft²
High street retail property for sale in C/o Balliol House, Southernhay Gardens, Exeter, Devon, EX1 1NP, EX1 — £350,000 • 1 bed • 1 bath
Commercial property for sale in Commercial Road, Exeter, EX2 — £500,000 • 1 bed • 1 bath • 1845 ft²
Restaurant for sale in Lock Up Restaurant/Bar Investment, Magdalen Road, Exeter, Devon, EX2 — £235,000 • 1 bed • 1 bath • 800 ft²
Pub for sale in Core, Mary Arches Street, Exeter, Devon, EX4 3AZ, EX4 — £500,000 • 1 bed • 1 bath • 4356 ft²






















