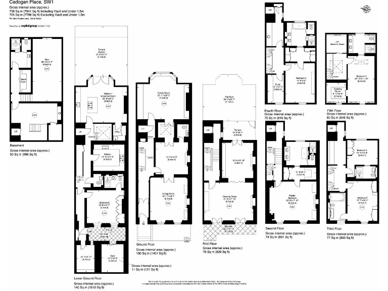
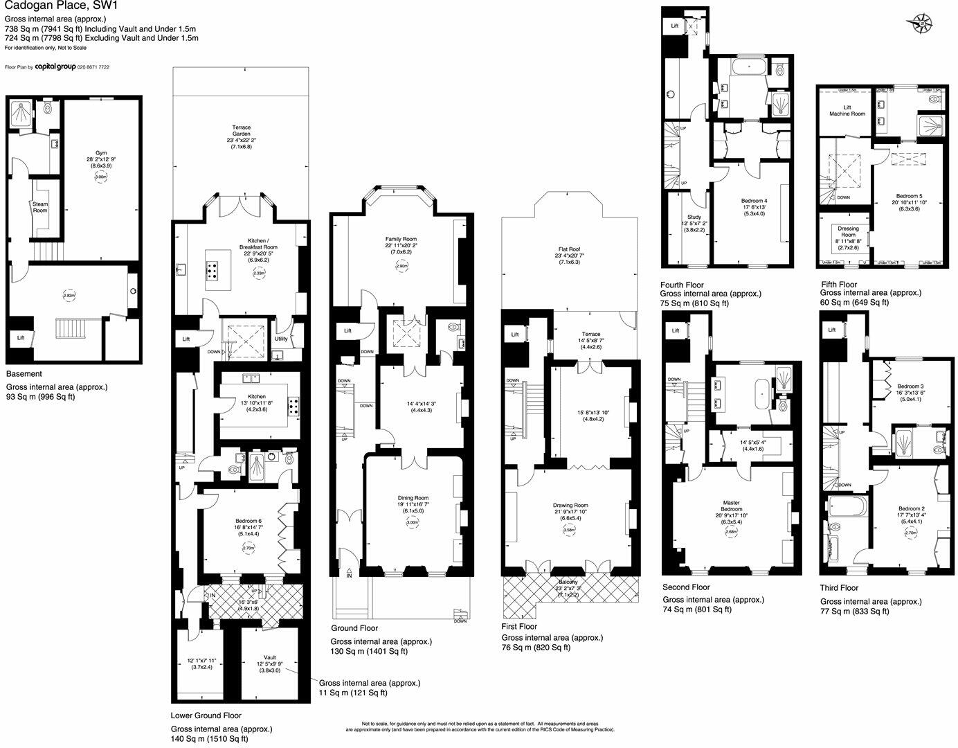
**Notable Features:**
- Six spacious bedrooms, each with en suite bathrooms/shower rooms
- Elegant first-floor double drawing room and dining room
- Family room, study, and a gym with a steam room
- Generous kitchen/breakfast room, garden, terrace, and balcony
- Victorian terraced house, Grade II listed, extensively refurbished
- Passenger lift servicing all but the 5th floor
- Total size of 7,798 sq ft, located in a highly affluent area 
**Concise Summary:**
Step into luxury living with this exquisite Grade II listed Victorian townhouse in SW1X, overlooking the serene Cadogan Place Gardens. Spanning an impressive 7,798 sq ft over six floors, the home features a grand double drawing room, a modern kitchen/breakfast room, and a dedicated gym with steam facilities, catering to both family entertaining and personal wellness. With six generous bedrooms equipped with en suite bathrooms, this property truly offers a rare blend of elegance and comfort, complemented by high ceilings, ornate moldings, and contemporary finishes.
While the extensive renovations ensure a high standard throughout, potential buyers should be mindful that the property has a listed status which may complicate future modifications. Positioned in an affluent inner-city area with well-rated independent schools and a vibrant local community, this gem combines classic architecture with modern amenities. Homes of this caliber are rarely available, making this an exceptional opportunity for discerning buyers to invest in a magnificent residence. Don’t miss your chance to own a piece of history in one of London’s most desirable neighborhoods!
 10 bedroom terraced house for sale in Lowndes Street, London, SW1X — £16,500,000 • 10 bed • 10 bath • 7656 ft²
 10 bedroom terraced house for sale in Lowndes Street, London, SW1X — £16,500,000 • 10 bed • 10 bath • 7656 ft² 6 bedroom terraced house for sale in Herbert Crescent, London, SW1X — £9,750,000 • 6 bed • 6 bath • 5360 ft²
 6 bedroom terraced house for sale in Herbert Crescent, London, SW1X — £9,750,000 • 6 bed • 6 bath • 5360 ft² 5 bedroom terraced house for sale in Cadogan Gardens, London, SW3 — £16,950,000 • 5 bed • 5 bath • 6504 ft²
 5 bedroom terraced house for sale in Cadogan Gardens, London, SW3 — £16,950,000 • 5 bed • 5 bath • 6504 ft² 4 bedroom terraced house for sale in Egerton Terrace, London, SW3 — £7,500,000 • 4 bed • 3 bath • 2917 ft²
 4 bedroom terraced house for sale in Egerton Terrace, London, SW3 — £7,500,000 • 4 bed • 3 bath • 2917 ft² 5 bedroom terraced house for sale in Sloane Gardens, Belgravia, London, SW1W — £16,750,000 • 5 bed • 5 bath • 6396 ft²
 5 bedroom terraced house for sale in Sloane Gardens, Belgravia, London, SW1W — £16,750,000 • 5 bed • 5 bath • 6396 ft² 6 bedroom terraced house for sale in South Eaton Place, London, SW1W — £9,950,000 • 6 bed • 4 bath • 3911 ft²
 6 bedroom terraced house for sale in South Eaton Place, London, SW1W — £9,950,000 • 6 bed • 4 bath • 3911 ft²


















































