Spacious plot with garage and excellent school links for families.
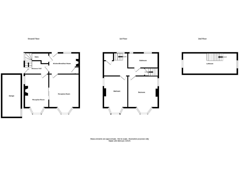
Detached two-bedroom house with loft room and strong rear views
This detached two-bedroom home in Upper Gornal pairs mid‑century character with clear scope to add value. Bay-fronted reception rooms, exposed beams and generous proportions give an immediate sense of space, while the loft room and pantry add practical storage. A gated driveway and single garage provide secure off‑street parking, and the mature rear garden benefits from strong rear aspect and far-reaching views.
The property will suit a family or investor willing to modernise. The interior shows period fittings and older floorcoverings; the kitchen and bathroom would benefit from updating. Construction details suggest cavity walls (assumed uninsulated) and a mix of timber single glazing and aluminium double glazing — upgrading insulation and glazing would improve comfort and running costs. Heating is mains gas with a boiler and radiators; all mains services are connected.
Location is a genuine strength: useful amenities and several well‑rated primary and secondary schools are close by. Broadband is reported fast and flood risk is negligible. Be candid about the local context — the area records higher deprivation than average and crime is described as average — but the site and accommodation give strong refurbishment and rental potential for a buyer focused on long‑term gain.
Overall this is a spacious, characterful detached house with a private garden, parking and loft potential. It offers a realistic project for a family seeking extra space or an investor targeting improvement-driven returns, provided buyers budget for modernisation and thermal upgrades.
2 bedroom semi-detached house for sale in Lake Street, Dudley, DY3 — £160,000 • 2 bed • 1 bath • 643 ft²
2 bedroom semi-detached house for sale in Roundhouse Road, Upper Gornal, DY3 — £239,950 • 2 bed • 1 bath • 739 ft²
4 bedroom detached house for sale in Parkdale, Vale Street, Dudley, DY3 — £385,000 • 4 bed • 1 bath • 1463 ft²
3 bedroom detached house for sale in Shallcross Lane, Lower Gornal, DY3 — £299,950 • 3 bed • 1 bath • 346 ft²
2 bedroom semi-detached house for sale in Tudor Road, Upper Gornal, DY3 — £219,950 • 2 bed • 1 bath • 818 ft²
3 bedroom detached house for sale in Kingham Close, Lower Gornal, DY3 — £259,950 • 3 bed • 1 bath • 747 ft²














































































