Move-in ready two-bedroom close to beach and transport links.
Two double bedrooms and one modern bathroom
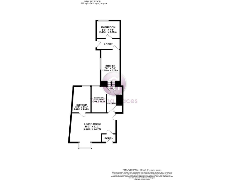
Approximately 582 sq ft — compact, cosy layout
Long lease: 996 years remaining (leasehold)
Private rear yard with gate to rear lane
Newly fitted carpets and good built-in storage
Heating: electric storage heaters (listing also mentions gas central)
Located 5-minute walk from Cullercoats Beach
Area has high recorded crime and is relatively deprived
A well-presented ground-floor two-bedroom flat a five-minute walk from Cullercoats Beach, offering an affordable coastal entry point. The living room is bright with a bay window and high ceiling, while the modern kitchen and bathroom reduce immediate refurbishment costs. A private rear yard provides outdoor space unusual for flats in this row.
The apartment suits first-time buyers or buy-to-let investors seeking a compact seaside home with rental potential. The long lease (996 years) and modest council tax band A keep running costs low. Newly fitted carpets and ample built-in storage make the flat move-in ready.
Buyers should note the property sits in a generally deprived area with high recorded crime and average mobile signal. Heating is electric storage heaters (the listing also references gas central heating), and the building has solid brick walls likely without cavity insulation — consider future energy-efficiency upgrades. The overall footprint is small at about 582 sq ft, so rooms feel cosy rather than expansive.
Viewings are recommended for anyone wanting a low-maintenance coastal base with scope to personalise. Practical investors will appreciate the location close to transport links, local amenities and nearby towns, while first-time buyers will value the low tax and long lease as solid financial advantages.
2 bedroom flat for sale in John Street, Cullercoats, North Shields, Tyne and Wear, NE30 — £184,000 • 2 bed • 1 bath • 506 ft²
2 bedroom apartment for sale in Dove Court, Cullercoats, North Shields, NE30 — £180,000 • 2 bed • 1 bath • 625 ft²
2 bedroom apartment for sale in East Parade, Whitley Bay, NE26 — £360,000 • 2 bed • 2 bath
1 bedroom retirement property for sale in Marden Avenue, Cullercoats, North Shields, NE30 — £149,950 • 1 bed • 1 bath • 710 ft²
2 bedroom apartment for sale in Marine Avenue, Whitley Bay, NE26 — £239,500 • 2 bed • 2 bath • 827 ft²
2 bedroom flat for sale in Kielder Terrace,
North Shields, Tyne & Wear,
NE30 2AD, NE30 — £130,000 • 2 bed • 1 bath • 1001 ft²






































