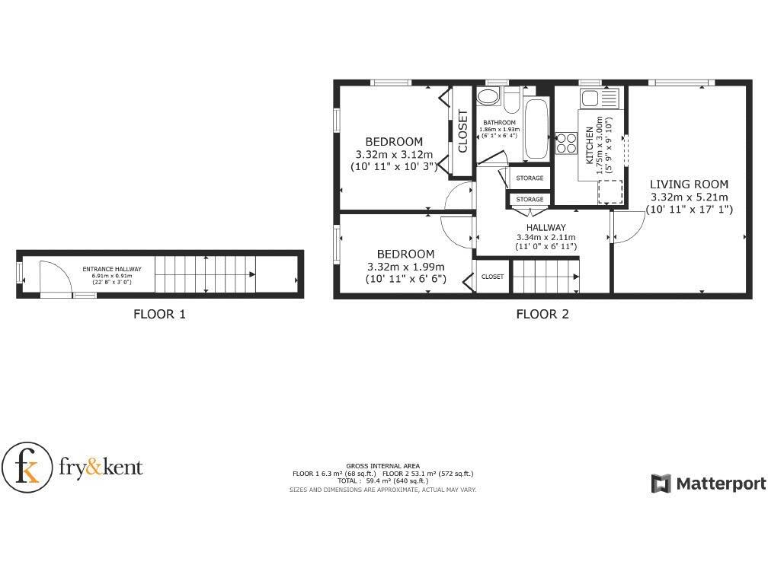
Compact two-bedroom home near marina amenities and transport links.
Private entrance with stairs to first-floor accommodation
Good-sized garage with parking space and external parking area
Contemporary fitted kitchen with integrated appliances
Spacious 17ft x 11ft living/dining room
Two bedrooms, one modern-style bathroom
Leasehold tenure (buyers should check lease terms)
Approximately 640 sq ft — compact city living
Two resident and one visitor parking permits included
Bright two-bedroom maisonette tucked inside the private Gunwharf Gate estate, a short walk from Gunwharf Quays and the marina. The property benefits from its own ground-floor entrance and stairs up to living accommodation, a contemporary fitted kitchen with integrated appliances and a 17ft x 11ft living/dining room that suits a first home or city-based couple.
Practical extras set this home apart: a good-sized garage with additional parking in front, two resident parking permits plus one visitor permit, gas central heating, double glazing, fast broadband and excellent mobile signal. The flat is described as well maintained internally and is ready to occupy with minimal immediate work.
Important points to note: the property is leasehold, has one bathroom and is an average-sized unit at about 640 sq ft, so storage and layout will suit buyers comfortable with compact city living rather than larger-family accommodation. Council tax is described as low, and there is no flood risk.
This maisonette will particularly appeal to first-time buyers seeking easy access to waterfront leisure and transport links, or to investors looking for a lettable central location with parking. Viewing is recommended to appreciate the garage size and proximity to local amenities.
2 bedroom flat for sale in Gunwharf Quays, Portsmouth, PO1 — £300,000 • 2 bed • 2 bath • 818 ft²
2 bedroom apartment for sale in Gunwharf Quays, Portsmouth, Hampshire, PO1 — £475,000 • 2 bed • 2 bath • 1077 ft²
2 bedroom flat for sale in Gunwharf Quays, Portsmouth, PO1 — £375,000 • 2 bed • 2 bath • 803 ft²
3 bedroom maisonette for sale in Gunwharf Quays, Portsmouth, PO1 — £475,000 • 3 bed • 2 bath • 1415 ft²
2 bedroom flat for sale in The Canalside, Gunwharf Quays, Portsmouth, Hampshire, PO1 — £280,000 • 2 bed • 1 bath • 952 ft²
2 bedroom apartment for sale in Gunwharf Quays, Portsmouth, PO1 — £310,000 • 2 bed • 2 bath • 969 ft²






















































































