Generous six-bed detached with large garden, double garage and flexible family living..
Six double bedrooms, several with en-suite facilities
Large landscaped rear garden; private and ideal for entertaining
Detached double garage plus driveway parking for up to seven vehicles
Spacious lounge with feature fireplace and garden-room access
Modern fitted kitchen with separate utility room
Constructed 2003–2006; double glazing and mains gas heating
Located near good primary schools; one nearby secondary requires improvement
Average local crime; urban/major town setting, not rural
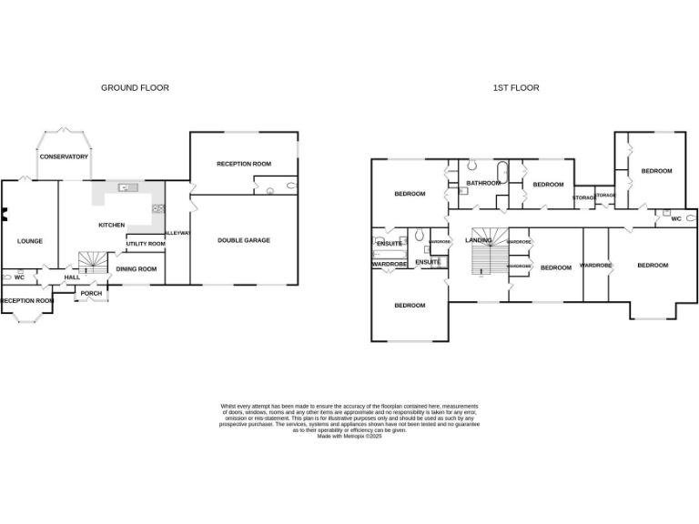
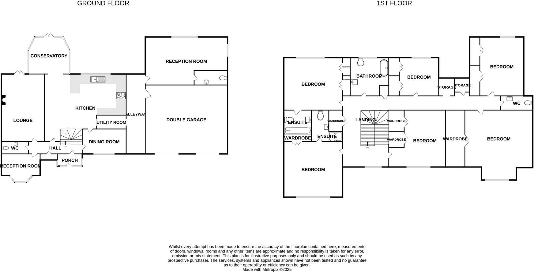
Set on a generous plot in sought-after Langdon Hills, this substantial six-bedroom detached home suits large or multi-generational families seeking space and privacy. Well-proportioned rooms and plentiful natural light create a comfortable, flexible layout with formal and informal living areas.
The ground floor offers a contemporary kitchen/breakfast room with separate utility, two reception rooms, a garden room and a principal lounge with feature fireplace opening onto a landscaped rear garden — an excellent setting for family life and entertaining. Several bedrooms have en-suite facilities and the principal suite includes a walk-in wardrobe, giving practical privacy for households with children or guests.
Practical strengths include a detached double garage, generous driveway parking (capacity for up to seven vehicles), double glazing and mains gas central heating. Constructed in the 2003–2006 period and presented in good order, the house sits in an affluent neighbourhood with fast broadband and excellent mobile signal — convenient for commuters and home workers.
Considerations: local secondary provision includes a school rated 'Requires improvement' (Ortu Hassenbrook Academy), and the property sits in a busy town/major town settlement rather than a rural location. Crime levels are average. Buyers should allow routine upkeep for a large family home and confirm any specific measurements or works during survey and conveyancing.
 4 bedroom detached house for sale in Kenton Way, Langdon Hills, Basildon, SS16 — £500,000 • 4 bed • 2 bath • 946 ft²
 4 bedroom detached house for sale in Kenton Way, Langdon Hills, Basildon, SS16 — £500,000 • 4 bed • 2 bath • 946 ft² 3 bedroom detached house for sale in High Road, Langdon Hills, Basildon, Essex, SS16 — £550,000 • 3 bed • 2 bath • 1477 ft²
 3 bedroom detached house for sale in High Road, Langdon Hills, Basildon, Essex, SS16 — £550,000 • 3 bed • 2 bath • 1477 ft² 5 bedroom detached house for sale in Bowfell Drive, Langdon Hills, Basildon, SS16 6SE, SS16 — £700,000 • 5 bed • 3 bath • 2200 ft²
 5 bedroom detached house for sale in Bowfell Drive, Langdon Hills, Basildon, SS16 6SE, SS16 — £700,000 • 5 bed • 3 bath • 2200 ft² 6 bedroom detached house for sale in Russetts, Langdon Hills, SS16 — £725,000 • 6 bed • 3 bath • 2082 ft²
 6 bedroom detached house for sale in Russetts, Langdon Hills, SS16 — £725,000 • 6 bed • 3 bath • 2082 ft² 4 bedroom detached house for sale in Monmouth Mews, Langdon Hills, SS16 — £560,000 • 4 bed • 2 bath • 1055 ft²
 4 bedroom detached house for sale in Monmouth Mews, Langdon Hills, SS16 — £560,000 • 4 bed • 2 bath • 1055 ft² 4 bedroom semi-detached house for sale in Rosecroft Close, Langdon Hills, Basildon, SS16 — £425,000 • 4 bed • 2 bath • 5583 ft²
 4 bedroom semi-detached house for sale in Rosecroft Close, Langdon Hills, Basildon, SS16 — £425,000 • 4 bed • 2 bath • 5583 ft²


























































































































































































