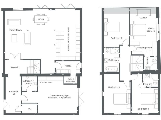
**Standout Features:**
- 5 spacious bedrooms, including a luxurious en-suite master suite
- Large contemporary open-plan living space of 3,056 sq. ft.
- High-quality finishes with rustic barn charm
- Private landscaped gardens ideal for outdoor entertaining
- Double Oak garages with potential office or guest suite above
- Quiet, exclusive development in idyllic Cheshire Countryside
- Flexible land options (0.5 acres; up to 2 acres available by negotiation)
- Excellent local schools with strong academic reputations
**Summary:**
Discover modern living at its finest in this impressive 5-bedroom barn conversion located in the tranquil Haycroft Barns development, nestled in the heart of the celebrated Cheshire Countryside. The property showcases an expansive open-plan layout, architecturally designed to merge contemporary luxury with charming rustic elements. With features including a high-end bespoke kitchen, bi-folding doors leading to generous outdoor spaces, and beautifully landscaped gardens, this home is perfect for families and those who love to entertain.
The double Oak garages offer versatile space for an office or guest suite, while the environment is enriched by picturesque countryside views and the convenience of excellent primary and secondary schools nearby. Although the proximity to major cities ensures easy commuting, the serene setting provides a peaceful retreat. With enticing potential for extensions and personal touches, don’t miss out on owning a slice of exclusive countryside living; grab this opportunity before it’s gone!
3 bedroom barn conversion for sale in An outstanding range of exclusive barn conversations, CW6 — £775,000 • 3 bed • 2 bath • 2228 ft²
4 bedroom barn conversion for sale in An outstanding range of exclusive barn conversations, CW6 — £950,000 • 4 bed • 3 bath • 2766 ft²
4 bedroom barn conversion for sale in An outstanding range of exclusive barn conversations, CW6 — £750,000 • 4 bed • 2 bath • 1948 ft²
3 bedroom barn conversion for sale in Haughton, Cheshire, CW6 — £655,000 • 3 bed • 2 bath • 1723 ft²
3 bedroom barn conversion for sale in Oakmere Barns, Farm Road, Oakmere, Northwich, CW8 — £425,000 • 3 bed • 2 bath • 1523 ft²
4 bedroom barn conversion for sale in Long Lane, Calveley, CW6 — £835,000 • 4 bed • 3 bath • 2346 ft²


































