IP11 9LS - 4 bedroom detached bungalow for sale in Upperfield Drive, F…

View on Property Piper

4 bedroom detached bungalow for sale in Upperfield Drive, Felixstowe, IP11

Summary - 78 Upperfield Drive,FELIXSTOWE,IP11 9LS IP11 9LS

4 bed 2 bath Detached Bungalow

**Standout Features:**
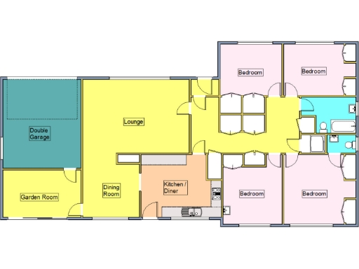
- Spacious 1711 sqft detached bungalow
- Four double bedrooms, including a primary bedroom with en-suite
- Garden room offering views of the private rear garden
- Ample off-road parking and a double garage
- Well-maintained gardens with countryside views
- Quiet, desirable cul-de-sac location in Old Felixstowe

**Summary:**
This rarely available detached bungalow in the sought-after Old Felixstowe combines spacious living with comfort and convenience. Boasting 1711 sqft of well-designed space, it features four generous double bedrooms, ideal for families or those needing extra room. The inviting lounge/dining area seamlessly connects to a delightful garden room, which overlooks a well-maintained rear garden adorned with scenic countryside views—perfect for relaxation or entertaining.

The property highlights include a practical kitchen equipped with quality integrated appliances, ample storage solutions throughout, and two bathrooms, enhancing daily functionality. Further features like a double garage and off-road parking will appeal to those in need of additional exterior space. While the interior showcases mid-century charm, some areas may benefit from modernization, providing future renovation potential for those looking to add personal touches.

Situated in a peaceful community with low crime rates and excellent local amenities, this home invites first-time buyers and families to envision a life of comfort and ease. Don’t miss your chance to secure this unique property—viewings are highly recommended as opportunities like this are rare!

Property Details

Brochure Descriptions

Image Descriptions

Floorplan Description

Rooms

Textual Property Features

Detected Visual Features

Nearby Schools

Nearest Bars And Restaurants

,,,,}

Nearest General Shops

,,}

Nearest Grocery shops

,,}

Nearest Supermarkets

,,}

Nearest Religious buildings

,,}

Nearest Medical buildings

,,,}

Nearest Leisure Facilities

,,,,}

Nearest Tourist attractions

,,}

Nearest Train stations

,,,,}

Nearest Bus stations and stops

,,,,}

Nearest Hotels

,,}

Tags

Local Market Stats

AirBnB Data

Similar Properties

Meta

High Res Images

Compatible Images

Low res Images

Thumbnails

Raw Images

High Res Floorplan Images

Compatible Floorplan Images

Low res Floorplan Images

FloorplanImages Thumbnail

Raw Floorplan Images