Two-bedroom terrace near Reading University with garden and no onward chain, ideal for first-time buyers or investors.
Two double bedrooms upstairs, compact and well-lit rooms
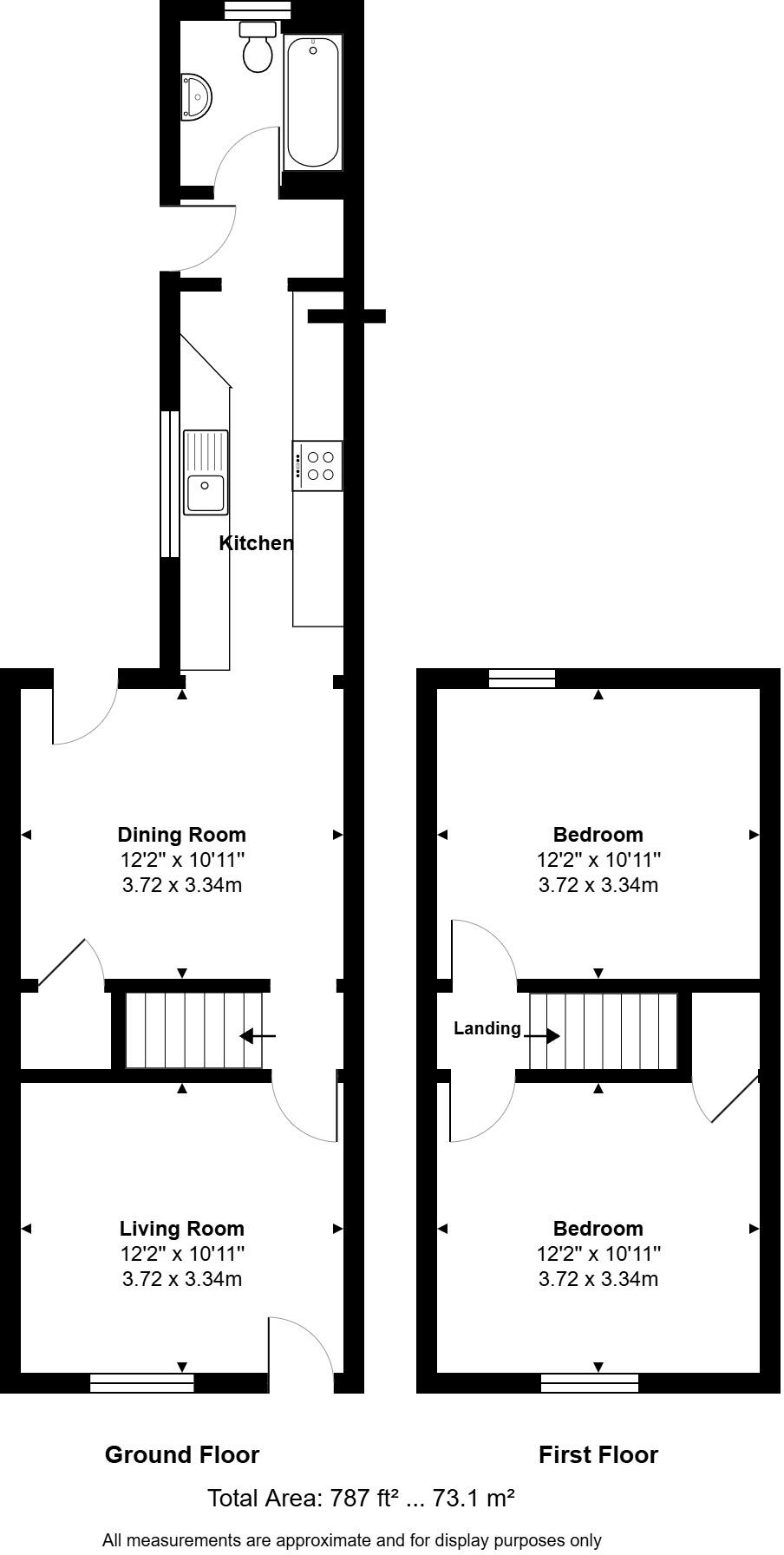
Set on a sought-after stretch near Reading University, this two-bedroom mid-terrace blends ready-to-live convenience with clear upgrade potential. The house offers two reception rooms, a modern kitchen and a pleasant private rear garden — an attractive package for first-time buyers or buy-to-let investors looking for low-competition purchase (no onward chain).
Interior rooms are well lit and practical: two double bedrooms upstairs, a three-piece bathroom and an open-plan kitchen/dining area that benefits from a large window and contemporary finishes. The living room is compact with wooden floors and a cosy feel, ready to occupy while you plan further improvements.
Built between 1900–1929 with solid brick walls, the property likely lacks cavity wall insulation and has double glazing installed before 2002. These are straightforward improvements to reduce running costs and increase comfort, but buyers should budget for insulation and potential window upgrades.
Positioned close to regular bus routes, Reading University, Royal Berkshire Hospital and local shops and cafés, the location suits students, professionals and families needing city access. Freehold tenure, no flood risk and fast broadband add practical appeal. Council tax is unknown — buyers should confirm banding before exchange.
2 bedroom terraced house for sale in Whitley Street, Reading, RG2 — £295,000 • 2 bed • 1 bath • 672 ft²
2 bedroom terraced house for sale in Foxhill Road, Reading, Berkshire, RG1 — £270,000 • 2 bed • 1 bath • 511 ft²
2 bedroom terraced house for sale in Reading University / Hospital Area, Berkshire, RG1 — £325,000 • 2 bed • 1 bath • 669 ft²
2 bedroom terraced house for sale in Foxhill Road, Reading, Berkshire, RG1 — £280,000 • 2 bed • 1 bath • 711 ft²
2 bedroom terraced house for sale in Waldeck Street, Reading, Berkshire, RG1 — £270,000 • 2 bed • 1 bath • 590 ft²
2 bedroom terraced house for sale in Foxhill Road, Reading, RG1 — £280,000 • 2 bed • 1 bath • 668 ft²






































