**Standout Features:**
- Modern one-bedroom ground floor retirement apartment
- Convenient location near town center with excellent transport links
- Lift access to elevated floors and private outdoor patio
- Large landscaped gardens and owners’ lounge
- Onsite Lodge Manager for support and social events
- 24-hour Careline system for security and safety
- Guest suite available for visiting friends and family
- Long lease with 977 years remaining
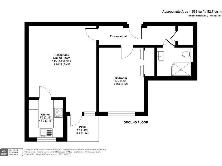
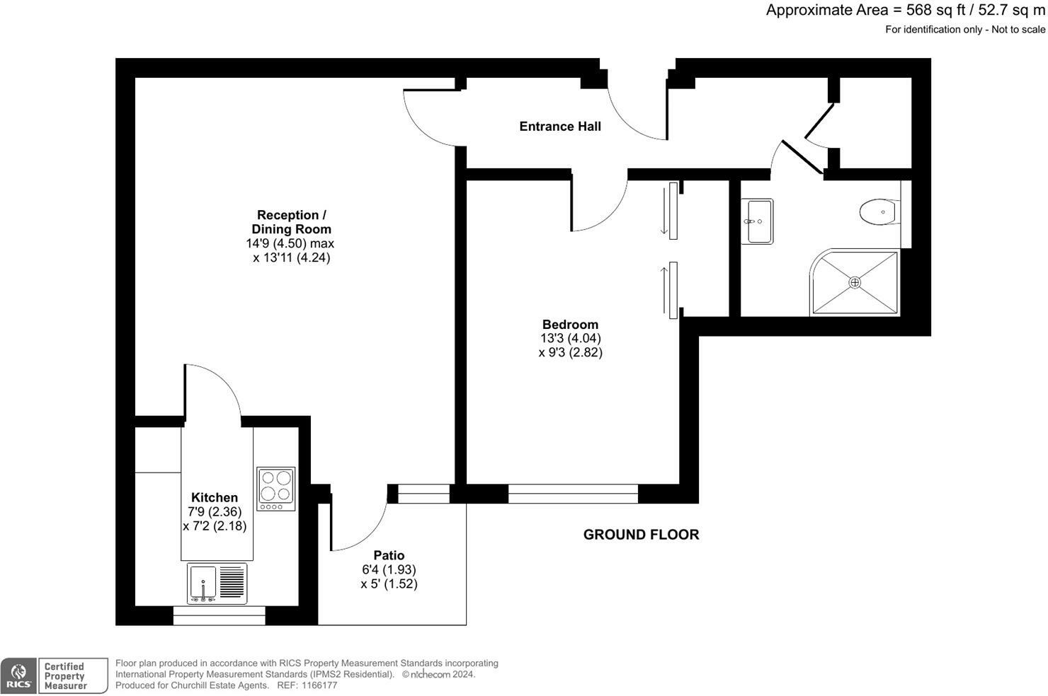
This contemporary one-bedroom ground floor retirement apartment at Oscar Lodge offers a harmonious blend of comfort and community. Boasting a spacious living room flooded with natural light and a kitchen equipped with modern appliances, it's designed for convenient living. The bedroom features a built-in mirrored wardrobe and adjoins a well-equipped shower room. Step outside to enjoy the lovely patio with views of the beautifully maintained gardens.
Located just moments from Aylesbury's bustling town centre, you'll have access to an array of shops, eateries, and cultural events, including two nearby theatres. The property is ideal for those seeking a supportive retirement lifestyle, complete with social amenities and resources to engage with neighbors. Potential buyers should note the average service charge of £3,168.39 per annum and a ground rent of £575, and while crime rates are high in the area, the property is equipped with security features to ensure peace of mind. This exclusive offering provides not just a home, but a vibrant living experience for individuals aged 60 and older—make your move before it's gone!
1 bedroom retirement property for sale in Oscar Lodge, Aylesbury, HP20 — £225,000 • 1 bed • 1 bath • 552 ft²
1 bedroom retirement property for sale in Oscar Lodge, Aylesbury, HP20 — £274,950 • 1 bed • 1 bath • 516 ft²
1 bedroom retirement property for sale in Oscar Lodge, Aylesbury, HP20 — £299,950 • 1 bed • 1 bath • 508 ft²
1 bedroom retirement property for sale in Oscar Lodge, Aylesbury, HP20 — £189,950 • 1 bed • 1 bath • 540 ft²
1 bedroom retirement property for sale in Oscar Lodge, Aylesbury, HP20 — £268,950 • 1 bed • 1 bath • 505 ft²
2 bedroom retirement property for sale in Oscar Lodge, Aylesbury, HP20 — £350,000 • 2 bed • 1 bath • 794 ft²






































































