Contemporary three-bed home on popular estate with easy transport links.
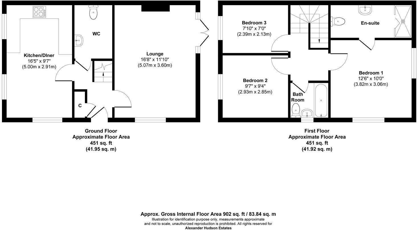
Three bedrooms with principal en-suite shower room
Full-depth lounge plus kitchen/diner for family meals
Enclosed rear garden — neat and low-maintenance, small plot
Two-car driveway at side; off-street parking provided
Approx 915 sq ft total; rooms are average-sized
Freehold tenure, fast broadband, average mobile signal
Affordable council tax; located on popular Great Park estate
Close to Good-rated primary schools and main road/bus links
This well-presented three-bedroom semi-detached home on Tulip Avenue suits growing families seeking ready-to-move-in accommodation on the popular Great Park estate. The ground floor offers a full-depth lounge and a kitchen/diner with space for family meals and everyday living. The principal bedroom includes an en-suite, while two further bedrooms and a family bathroom serve the household comfortably.
Outside, the property benefits from an enclosed rear garden ideal for entertaining and a two-car driveway to the side. The plot is on the smaller side, so outdoor space is neat and low-maintenance rather than expansive. Internally the rooms are of average size within a total of approximately 915 sq ft, so buyers wanting very large living areas should note the modest footprint.
Practical extras include freehold tenure, fast broadband, average mobile signal, and an affordable council tax band. Local amenities and transport links are convenient: Good-rated local primary schools, nearby shops and leisure options, frequent buses and easy access to the A1 make commuting and family life straightforward.
This house will suit families wanting a contemporary, low-upkeep home in a sought-after residential estate. It also offers straightforward scope for cosmetic updating if you want to personalise finishes or improve layout efficiency.
3 bedroom detached house for sale in Osprey Walk, Great Park, NE13 — £260,000 • 3 bed • 2 bath • 1144 ft²
3 bedroom semi-detached house for sale in Bramble Way, Great Park, NE13 — £260,000 • 3 bed • 2 bath • 928 ft²
3 bedroom semi-detached house for sale in Lydford Court, Newcastle upon Tyne, Tyne and Wear, NE3 — £285,000 • 3 bed • 2 bath • 1217 ft²
4 bedroom semi-detached house for sale in Chipchase Mews, Great Park, NE3 — £315,000 • 4 bed • 2 bath • 967 ft²
3 bedroom terraced house for sale in Orangetip Gardens, Great Park, Newcastle Upon Tyne,, NE13 — £205,000 • 3 bed • 1 bath • 1006 ft²
3 bedroom town house for sale in Willowbay Drive, Great Park, NE13 — £240,000 • 3 bed • 2 bath • 1067 ft²










































































