Period charm and family-friendly layout near Harborne High Street and transport links..
Freehold Edwardian mid-terrace with period features and bay window
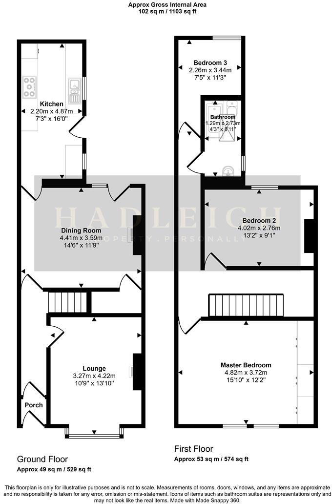
Approximately 1,103 sq ft across two floors, three bedrooms
Large dining room and modern fitted kitchen with integrated appliances
Private rear garden, original outhouse, small overall plot
Single family bathroom only; one bath/shower room upstairs
Solid brick walls; likely no cavity insulation — potential energy upgrades
Photos taken before tenant occupation; check current condition
No upward chain; convenient for Harborne High Street and transport
This Edwardian mid-terrace on Grosvenor Road offers a comfortable family layout and period charm in Harborne. The house has a spacious front lounge with a bay window, a large separate dining room, and a modern fitted kitchen that opens onto a private rear garden — good for everyday family life or entertaining.
Location is a clear strength: Harborne High Street, shops, restaurants, and transport links to Birmingham city centre, the QE Hospital and the University are all close by. Local leisure facilities and several well-regarded primary and secondary schools make this a practical choice for families and professionals wanting easy access to city amenities within an affluent area.
Practical details are straightforward — freehold tenure, approx. 1,103 sq ft, mains gas central heating and double glazing — but there are material points to note. The property has a single bathroom, a relatively small garden/plot, and solid brick walls likely lacking cavity insulation; buyers should budget for potential thermal upgrades. Photos were taken prior to a tenant occupying the property; verify current condition and check EPC D and council tax banding as part of due diligence.
3 bedroom terraced house for sale in Grosvenor Road, Harborne, Birmingham, B17 — £325,000 • 3 bed • 1 bath • 1031 ft²
3 bedroom terraced house for sale in Hartledon Road, Harborne, Birmingham, B17 — £375,000 • 3 bed • 1 bath • 921 ft²
3 bedroom terraced house for sale in Grosvenor Road, Harborne, Birmingham, B17 9AL, B17 — £450,000 • 3 bed • 1 bath • 1438 ft²
3 bedroom terraced house for sale in Hampton Court Road, Harborne, Birmingham, B17 — £290,000 • 3 bed • 2 bath • 1217 ft²
3 bedroom terraced house for sale in Springavon Croft, Harborne, Birmingham, B17 — £355,000 • 3 bed • 1 bath • 593 ft²
3 bedroom terraced house for sale in Harborne Park Road, Harborne, Birmingham, B17 0PS, B17 — £269,950 • 3 bed • 1 bath • 868 ft²


































































