Move-in ready house with garden, garage and easy city access.
Four good-sized bedrooms, two large reception rooms
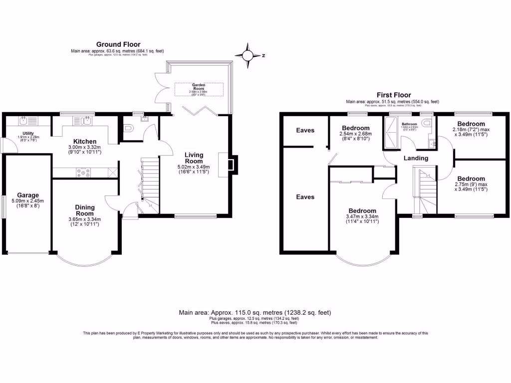
This immaculately presented four-bedroom detached house in Donnington offers move-in ready family living within easy walking distance of Chichester city centre and the train station. Recent renovations include a contemporary kitchen, modern bathroom, freshly decorated interiors, new carpets and a newly fitted sunroom that adds bright, usable space overlooking the garden. The loft is fully boarded with upgraded insulation, and the property benefits from a garage plus driveway parking for two cars.
The home is arranged over two storeys with two large reception rooms, a utility, and a private west-facing rear garden that receives good afternoon and evening sun. The plot is a decent size for the area and neighbours have extended, so there is further potential to increase accommodation subject to planning consent. Broadband speeds are fast and mobile signal is excellent — practical advantages for home working.
Buyers should note a few practical points: there is a single bathroom serving four bedrooms, council tax is above average, and the double glazing was installed before 2002 so may be less efficient than modern units. The house dates from the mid-20th century and, while recently renovated throughout, buyers seeking a completely new-build specification should allow for normal maintenance and future updating as desired.
Overall this detached home suits families looking for a well-presented, spacious property in a very affluent, well-served area of Chichester with good local schools and easy access to town amenities. Internal viewing is recommended to appreciate the layout, condition and garden orientation.
5 bedroom semi-detached house for sale in Graydon Avenue, Chichester, PO19 — £725,000 • 5 bed • 4 bath • 2184 ft²
4 bedroom detached house for sale in Gordon Avenue, Chichester, PO19 — £625,000 • 4 bed • 2 bath • 1997 ft²
3 bedroom detached house for sale in Deer Close, Chichester, West Sussex, PO19 — £519,950 • 3 bed • 2 bath • 1428 ft²
3 bedroom detached house for sale in Birdham Road, Chichester, PO19 — £525,000 • 3 bed • 1 bath • 1216 ft²
4 bedroom link detached house for sale in Marden Avenue, Chichester, PO19 — £525,000 • 4 bed • 1 bath • 1177 ft²
4 bedroom detached house for sale in Ferry Drive, Chichester, PO19 — £725,000 • 4 bed • 3 bath • 1646 ft²










































































































