Three-storey family home with garage, garden and excellent commuter links..
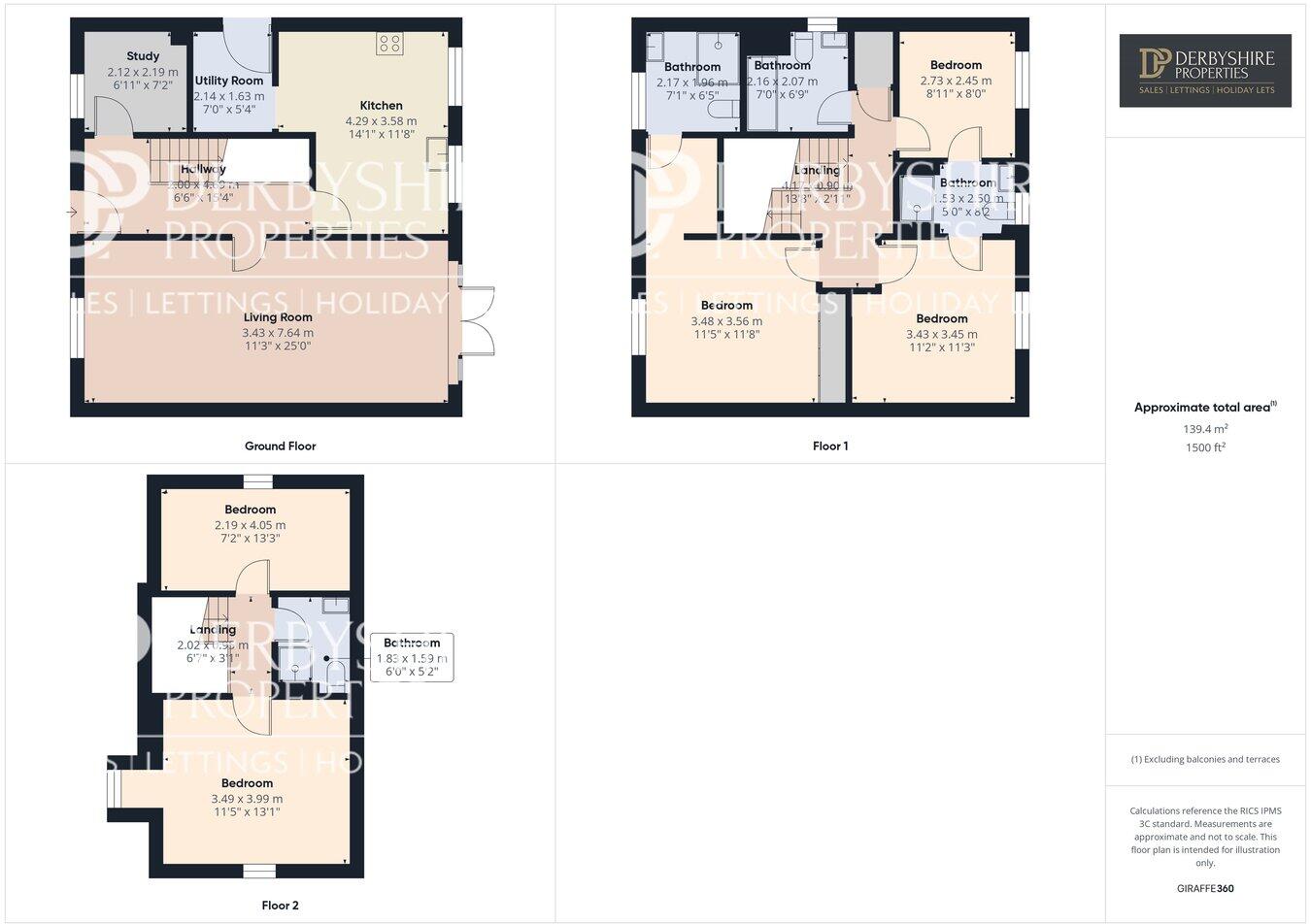
Vacant possession; flexible five-bedroom family layout across three storeys
Two en suites plus family bathroom and additional first-floor Jack & Jill layout
Driveway parking for multiple vehicles and detached garage with power
Rear enclosed garden with raised decking; plot described as small
Built 2007–2011 with double glazing and mains gas central heating
Excellent road links to A38 and M1 — good for commuters
Area records higher-than-average crime rates — check local statistics
Council tax rated above average for the area
This spacious five-bedroom detached home spans three storeys and is well suited to growing families who need flexible living space. Ground-floor study, open-plan lounge/dining and a utility-equipped kitchen give everyday family life practical flow, with two en suites and a family bathroom reducing morning congestion.
Externally the property offers driveway parking for multiple vehicles and a detached garage with power and light. The rear enclosed garden features raised decking for entertaining; the plot is described as small, so outdoor space is practical rather than expansive. The house faces open common ground which improves the immediate outlook.
The building is modern (constructed 2007–2011) with double glazing and gas central heating, meaning lower immediate retrofit costs. It is offered with vacant possession and good access to the A38 and M1 for commuters. Local primary and secondary schools include Good-rated options, though one nearby primary has an Inadequate Ofsted rating — check individual school catchment suitability.
Notable negatives are factual: the area records higher-than-average crime, the property pays above-average council tax, and the plot size is small. These factors, along with the property’s semi-urban location, should be weighed against the spacious internal layout and transport links. A viewing is recommended to assess presentation and space in person.
4 bedroom detached house for sale in Nightingale Grove, South Normanton, DE55 — £315,000 • 4 bed • 2 bath • 983 ft²
4 bedroom detached house for sale in Knitters Road, ALFRETON, Derbyshire, DE55 — £270,000 • 4 bed • 2 bath • 1049 ft²
4 bedroom detached house for sale in Thornhill Drive, South Normanton, Alfreton, Derbyshire, DE55 — £260,000 • 4 bed • 2 bath • 1356 ft²
3 bedroom semi-detached house for sale in Carter Lane East, ALFRETON, Derbyshire, DE55 — £250,000 • 3 bed • 2 bath • 1335 ft²
3 bedroom house for sale in The Hollies Storth Lane, South Normanton, DE55 — £210,000 • 3 bed • 2 bath • 331 ft²
3 bedroom detached house for sale in Buntingbank Close, South Normanton, DE55 — £279,950 • 3 bed • 1 bath • 992 ft²


















































































