Chain‑free three-bedroom home with sheltered south‑west garden, close to beach and amenities.
Chain free mid-terrace house in central Rottingdean village
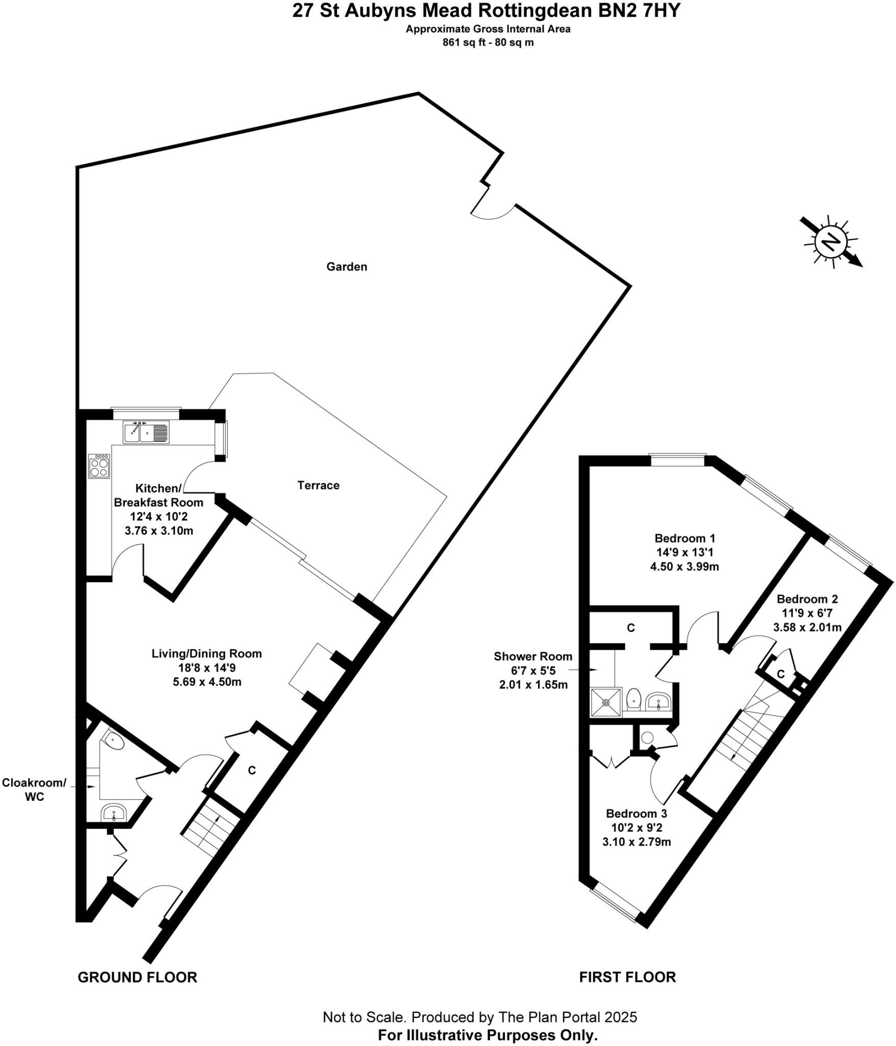
Tucked into the heart of Rottingdean village, this mid-terrace three-bedroom house offers easy access to the beach, Undercliff walk and local amenities. The home is arranged over multiple floors with an L-shaped living/dining room that opens via large patio doors onto a secluded south‑west facing garden — a rare, sunny outdoor space for this development. A recently installed gas boiler (2024) and 2023 solar panels reduce running costs; solar generation is currently sold to Octopus (buyer should check ongoing terms).
The kitchen/breakfast room provides generous fitted storage and direct garden access, while the principal bedroom benefits from built-in wardrobes and a partial sea glimpse from the front. Practical storage is provided throughout with built-in cupboards in bedrooms and a linen cupboard on the landing. The property is freehold and offered chain‑free, making it straightforward to progress.
Notable considerations: there is a single family shower room, the private plot is modest in size, and the property was built 1976–82 (cavity walls with assumed partial insulation). Service charge and residents’ association costs are low (£15.50/month, approx. £186pa), but council tax sits in Band E which is above average. Buyers seeking more outdoor space or a larger garden should note the compact plot.
This home will suit buyers wanting village lifestyle with excellent transport links and seaside access — families, professionals and downsizers who prioritise location, easy access to the seafront and low running costs. Some cosmetic updating could add value for investors or new owners looking to personalise the layout.
3 bedroom end of terrace house for sale in Nevill Road, Rottingdean, Brighton, East Sussex, BN2 — £635,000 • 3 bed • 1 bath • 941 ft²
3 bedroom terraced house for sale in Winton Cottages, Rottingdean,Brighton, East Sussex, BN2 — £500,000 • 3 bed • 2 bath • 1242 ft²
3 bedroom terraced house for sale in High Street, Rottingdean, BN2 — £575,000 • 3 bed • 1 bath • 1247 ft²
3 bedroom terraced house for sale in High Street, Rottingdean, Brighton, East Sussex, BN2 — £575,000 • 3 bed • 1 bath • 1259 ft²
2 bedroom terraced house for sale in Park Road, Rottingdean, Brighton, East Sussex, BN2 — £350,000 • 2 bed • 1 bath • 592 ft²
3 bedroom terraced house for sale in St. Aubyns Mead, Rottingdean, Brighton, BN2 — £450,000 • 3 bed • 1 bath • 1007 ft²


























































































































