YO41 4AD - 4 bed victorian farmhouse with barn in Church Lane, YO41 4AD

View on Property Piper

4 bedroom character property for sale in Church Lane, Elvington, York YO41 4AD, YO41

Summary - SYCAMORE FARM, CHURCH LANE, YORK, ELVINGTON YO41 4AD

4 bed 1 bath Character Property

Spacious family home with a two‑bed barn and large south‑facing gardens on 0.25 acre..
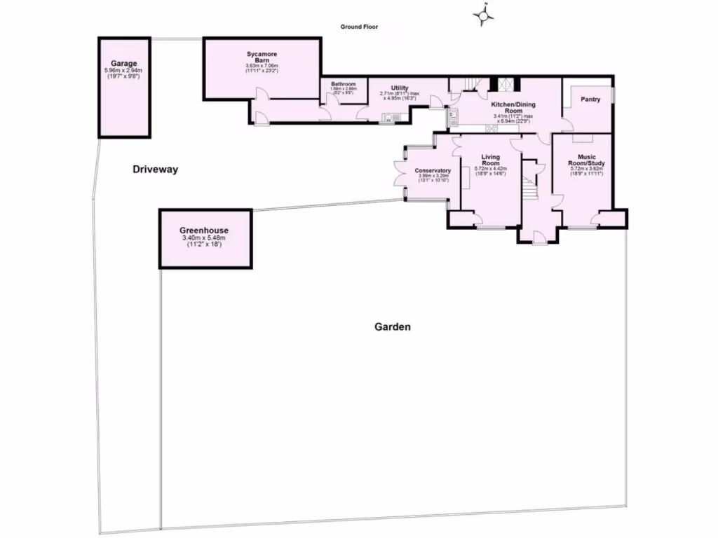
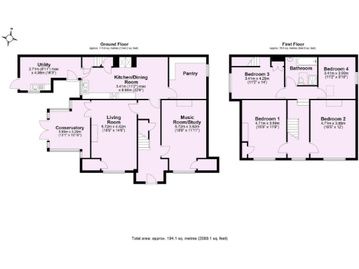
Detached Victorian main house with four bedrooms
Set in one of Elvington’s most desirable lanes, Sycamore Farm is a roomy Victorian family home with a linked two‑bedroom converted barn, and about 0.25 acres of beautiful south‑facing gardens. The main house keeps many period details — high ceilings, quarry tiles and original fireplaces — giving a warm, characterful feel across flexible reception rooms and four bedrooms.

The adjoining barn offers genuine versatility: private annexe for relatives, multi‑generational living, or potential holiday let subject to planning. The two properties have separate boilers and meters, which supports independent use but also means running and maintenance for both units.

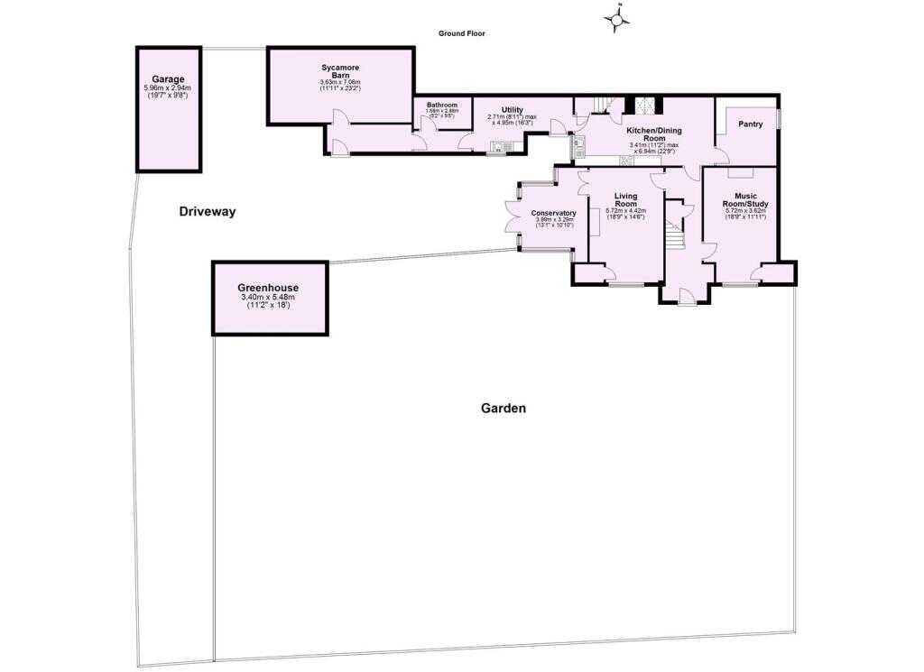
Garden lovers will appreciate the well stocked perennial borders, several apple trees, vegetable areas, ponds and a large greenhouse. Off‑road parking for several cars leads to a single garage and the plot is enclosed for privacy — ideal for families seeking outdoor space close to York.

Practical points to note: the main house has an EPC rating of E and solid brick walls (likely uninsulated), so energy performance could be improved. Council tax is relatively high (Band F for the main house). While the property is chain‑free and in Fulford School catchment, buyers should allow budget for ongoing running costs and possible energy upgrades if desired.

Property Details

Brochure Descriptions

Image Descriptions

Floorplan Description

Rooms

Textual Property Features

Target Audience

AI Tags

Detected Visual Features

EPC Details

Nearby Schools

Nearest Bars And Restaurants

,,,,}

Nearest General Shops

,,}

Nearest Grocery shops

,,}

Nearest Supermarkets

,,}

Nearest Religious buildings

,,}

Nearest Medical buildings

,,,}

Nearest Leisure Facilities

,,,,}

Nearest Tourist attractions

,,}

Nearest Train stations

,,,,}

Nearest Bus stations and stops

,,,,}

Nearest Hotels

,,}

Tags

Local Market Stats

AirBnB Data

Similar Properties

Meta

High Res Images

Compatible Images

Low res Images

Thumbnails

Raw Images

High Res Floorplan Images

Compatible Floorplan Images

Low res Floorplan Images

FloorplanImages Thumbnail

Raw Floorplan Images