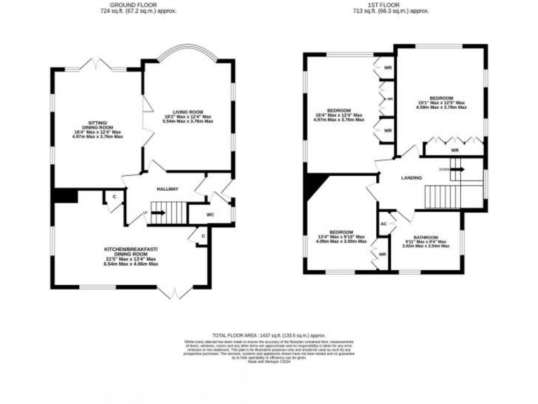
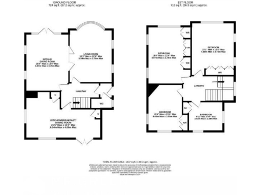
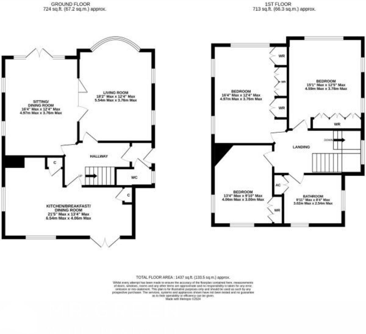
### Standout Features:
- **Spacious 3-Bedroom Detached Home:** Approximately 1,400 sq. ft. of bright living space.
- **Versatile Living Areas:** Two reception rooms offer flexibility for family needs.
- **Open-Plan Kitchen:** Ideal for entertaining, complete with a breakfast bar and access to the garden.
- **Sunny Rear Garden:** Ideal for relaxation and family gatherings with lawn and patio areas.
- **Ample Parking:** Driveway and detached garage included.
- **Characterful 1930s Home:** Features such as bay windows and dual-aspect rooms add charm.
### Summary:
Nestled in a tranquil cul-de-sac, this charming 3-bedroom detached house blends character with modern living. Spanning approximately 1,400 sq. ft., it boasts spacious interiors filled with natural light. The versatile layout includes two generously-sized reception rooms — perfect for cozy family evenings or entertaining guests. The open-plan kitchen is a focal point, featuring shaker units and a breakfast bar, making it the ideal setting for gatherings, with easy access to the sunny, secluded rear garden.
Step outside to enjoy your well-maintained garden, a peaceful retreat complete with lawn and two patio areas, ideal for barbecues and outdoor relaxation. With a detached garage and ample driveway space, parking is never a concern. Located just minutes away from shops, beaches, and river walks, you’ll have everything at your fingertips, including excellent schools with good ratings nearby.
While the property is ready to move in, those looking for potential future renovations can easily tailor this home to their tastes, making it a fantastic investment for families and first-time buyers alike. Unique homes in such a desirable location don't last long, so seize the opportunity to make this delightful house your new family sanctuary.
3 bedroom detached house for sale in Tuckton Road, Bournemouth, Dorset, BH6 — £600,000 • 3 bed • 1 bath • 1242 ft²
3 bedroom detached house for sale in Danesbury Avenue, Bournemouth, Dorset, BH6 — £625,000 • 3 bed • 1 bath • 1100 ft²
3 bedroom detached house for sale in Corhampton Road, Southbourne, Dorset, BH6 5NY, BH6 — £525,000 • 3 bed • 2 bath • 1431 ft²
3 bedroom detached house for sale in Pauncefote Road, Bournemouth, BH5 — £600,000 • 3 bed • 1 bath • 1429 ft²
3 bedroom bungalow for sale in Spacious, Well presented, Level Access Bungalow in Elmsway, BH6 — £625,000 • 3 bed • 2 bath • 1292 ft²
4 bedroom detached house for sale in Southlea Avenue, Southbourne, BH6 — £600,000 • 4 bed • 1 bath • 1300 ft²






























































