South-facing garden, driveway and en suite — great for growing families.
Vacant possession and sold chain free
End-terrace with south-facing sitting room and garden
Main bedroom with fitted wardrobes and en suite shower
Second double bedroom plus family bathroom/WC
Modern fitted kitchen with integrated appliances
Off-street driveway parking for two vehicles
Plot is small — limited garden and outdoor space
One summary reports rear backing onto open fields (verify)
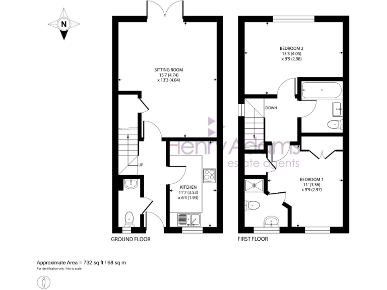
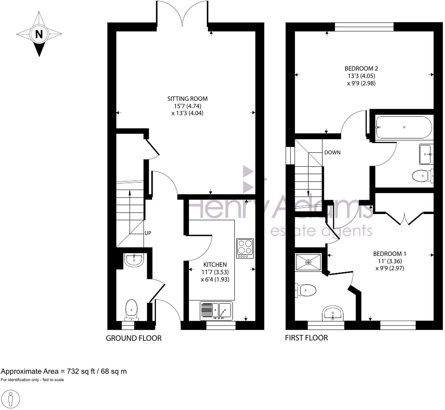
This chain-free, end-terrace house offers practical family living in a quiet Tangmere cul-de-sac. Vacant possession makes it straightforward to move into or let out, with an integrated kitchen, cloakroom and a south-facing sitting room that brings light into the heart of the house.
Upstairs the main bedroom has fitted wardrobes and an en suite shower room, with a second double bedroom and family bathroom completing the layout. The accommodation is an average size throughout (approximately 732 sq ft) and presented in modern condition with an EPC rating B — suitable for first-time buyers or young families.
Outside there is an off-street driveway and a small south-facing rear garden good for sitting out and light gardening. One summary notes the garden backs onto open fields and offers rural aspects; this should be confirmed at viewing. The plot is modest, so buyers seeking larger gardens should note the limited outdoor space.
Practical local points: Tangmere Primary Academy and other schools are within easy reach, public transport and local amenities nearby, and broadband and mobile signals are strong. Council tax band C applies; no flooding risk indicated.
2 bedroom terraced house for sale in Hangar Drive, Tangmere, PO20 — £285,000 • 2 bed • 2 bath • 723 ft²
3 bedroom semi-detached house for sale in Hangar Drive, Tangmere, PO20 — £365,000 • 3 bed • 2 bath • 1109 ft²
4 bedroom detached house for sale in St. Andrews Lane, Tangmere, PO20 — £675,000 • 4 bed • 3 bath • 2153 ft²
4 bedroom detached house for sale in Hangar Drive, Tangmere, Chichester, PO20 — £475,000 • 4 bed • 2 bath • 1575 ft²
4 bedroom detached house for sale in Oakwood Close, Tangmere, Chichester, PO20 — £525,000 • 4 bed • 2 bath • 1369 ft²
2 bedroom ground floor flat for sale in The Boulevard, Chichester, West Sussex, PO20 — £250,000 • 2 bed • 2 bath • 646 ft²






















































































