Private garden and storage near town centre and train station.
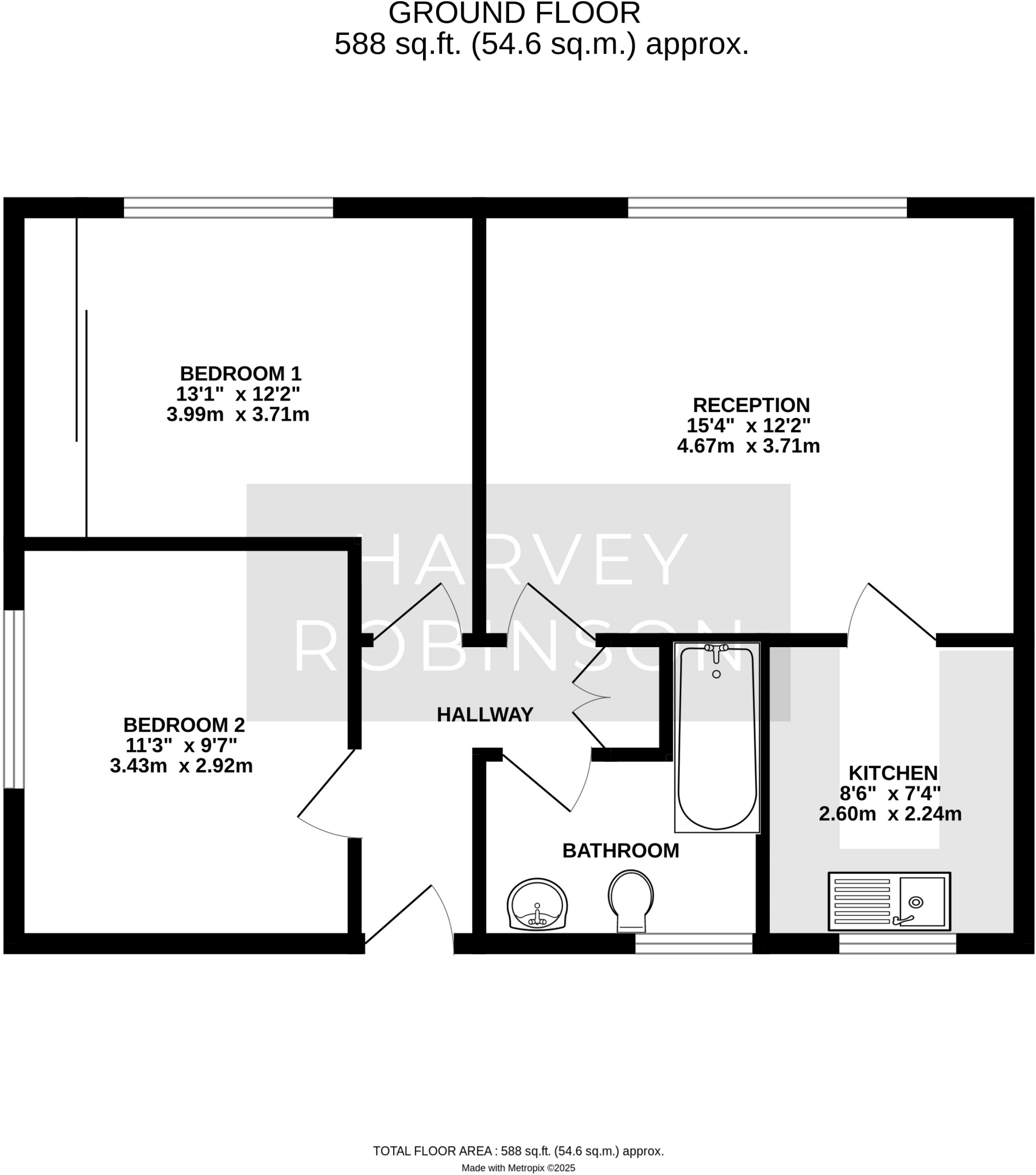
Two double bedrooms in a compact 588 sq ft layout
A compact, chain-free two double bedroom first-floor apartment with its own private garden and outside storage — a practical step onto the property ladder in St Neots. The flat sits within easy walking distance of the town centre and train station, making it a sensible choice for commuters who value location over large living space.
The accommodation totals about 588 sq ft and includes a lounge/diner, separate kitchen, two double bedrooms and a bathroom. It is heated by electric storage heaters and benefits from double glazing. The building dates from the late 1960s–1970s and the EPC is currently E (44) with a potential to improve to D (62), so energy-efficiency upgrades would add long-term value and reduce bills.
Practical considerations include an 88-year lease, an annual service charge of approximately £1,860.56 and a nominal ground rent of £10 pa. These factors, together with the small overall footprint, make the property especially suited to first-time buyers or buy-to-let investors seeking a low-maintenance, commuter-focused home with short-term rental potential.
While the exterior appears generally tidy, the flat is modest in size and will benefit from cosmetic updating and energy improvements. Buyers should check lease details and service charge arrangements, and arrange their own inspections of heating, electrics and other services before committing.
2 bedroom apartment for sale in Great North Road, Eaton Socon, PE19 — £185,000 • 2 bed • 1 bath • 533 ft²
2 bedroom apartment for sale in Mallard Lane, St Neots, PE19 — £130,000 • 2 bed • 1 bath • 653 ft²
2 bedroom apartment for sale in Dramsell Rise, St Neots, PE19 — £170,000 • 2 bed • 1 bath • 601 ft²
2 bedroom flat for sale in Sandwich Road, St. Neots, PE19 — £175,000 • 2 bed • 1 bath • 667 ft²
1 bedroom apartment for sale in Hall Road, Eynesbury, St. Neots, Cambridgeshire, PE19 — £130,000 • 1 bed • 1 bath • 466 ft²
2 bedroom apartment for sale in New Street, St. Neots, PE19 — £150,000 • 2 bed • 1 bath • 493 ft²














































