Spacious village home with annex and large private garden.
Over 280 sqm (approx 3,022 sq ft) of living space
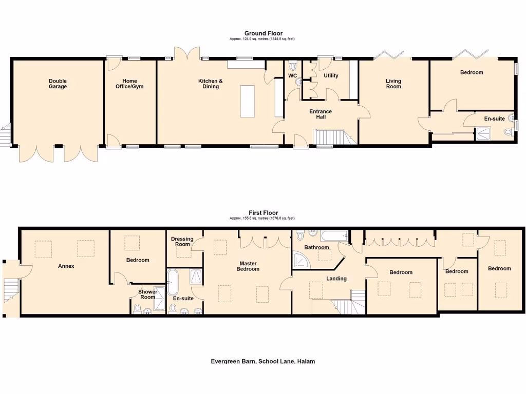
Evergreen Barn is a spacious, newly renovated five-bedroom barn conversion set within the peaceful Evergreen Estate, close to Southwell and within The Minster School catchment. The main house combines vaulted ceilings, exposed brick and timber beams with contemporary finishes — a large open-plan kitchen, generous reception rooms and a master suite with walk-in wardrobe provide comfortable family living. Underfloor heating, an air source heat pump and Starlink connectivity deliver modern, energy-conscious convenience.
The property includes a self-contained annex above the garage with kitchen, living area, double bedroom and bathroom, currently operated successfully as an Airbnb, offering income potential or flexible guest accommodation. A large double garage, roomy driveway parking and plentiful storage add practical value for family life.
Outside, the garden backs onto open fields and features a full-length patio, raised rear patio and decking with a six-person hot tub — excellent privacy and outdoor living. Note practical considerations: the property is freehold but part of Evergreen Estates where gravel maintenance costs are shared (split three ways, not fixed), the council tax band is described as expensive, and the annex bathroom has restricted head height. The separate office/gym is not currently connected to the main heating system.
5 bedroom barn conversion for sale in Great North Road, Barnby Moor, Retford, DN22 — £525,000 • 5 bed • 3 bath • 3917 ft²
5 bedroom barn conversion for sale in Caunton Road, Hockerton, Southwell, Nottinghamshire, NG25 — £900,000 • 5 bed • 5 bath • 3273 ft²
4 bedroom barn conversion for sale in Church Lane, Boughton, Newark, NG22 — £550,000 • 4 bed • 2 bath • 2416 ft²
6 bedroom barn conversion for sale in Retford Road, Blyth, Worksop, S81 — £1,000,000 • 6 bed • 6 bath • 7133 ft²
5 bedroom barn conversion for sale in Kirklington Road, Hockerton, Southwell, NG25 — £750,000 • 5 bed • 3 bath • 2692 ft²
4 bedroom barn conversion for sale in Church View, Bilsthorpe, Newark, NG22 — £500,000 • 4 bed • 3 bath • 698 ft²






































































































































































