**Standout Features:**
- 3 bedrooms in a semi-detached layout
- Cozy lounge/dining room with a fireplace
- Well-maintained, south-facing rear garden
- Carport and garage with ample off-street parking
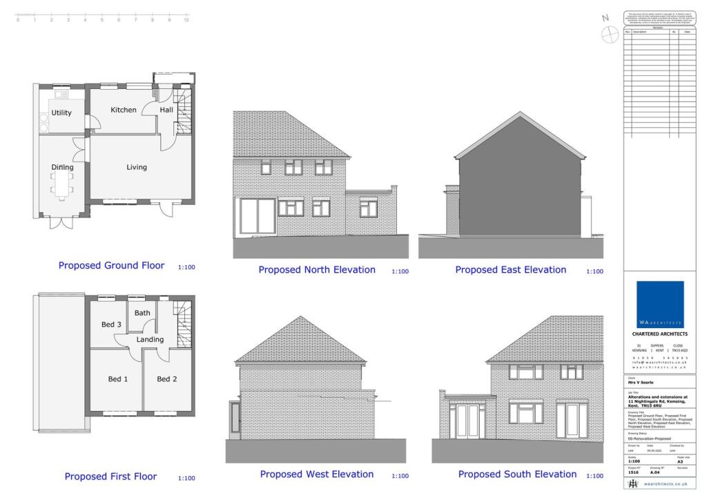
- Planning permission for a single-storey side extension (22/02586/HOUSE)
- Chain-free sale in an affluent area with very low crime rates
**Summary:**
Nestled in the tranquil community of Kemsing, Kent, this charming three-bedroom semi-detached home presents a fantastic opportunity for families and investors alike. Spanning approximately 1,040 square feet, the property boasts a cozy lounge with a welcoming fireplace and a well-sized kitchen, ready for your personal touch. The extensive, meticulously cared-for rear garden offers an expansive retreat for outdoor gatherings, while the front provides generous off-street parking.
This residence is further enhanced by planning permission for a single-storey side extension, allowing you to seamlessly increase your living space to suit your lifestyle. With easy access to transport links via a cut-through footpath to Otford train station, daily commutes become hassle-free. While the property retains much of its mid-20th-century charm, a few updates can transform it into a modern paradise. Ideal for growing families or those seeking rental potential, this home offers not only comfort but also exceptional future value in a sought-after location. Don’t miss your chance to secure this gem!
4 bedroom semi-detached house for sale in Castle Drive, Kemsing, Sevenoaks, TN15 — £575,000 • 4 bed • 2 bath • 1356 ft²
3 bedroom semi-detached house for sale in Montfort Road, Kemsing, TN15 — £500,000 • 3 bed • 1 bath • 1158 ft²
3 bedroom semi-detached house for sale in Brookfield, Kemsing, TN15 — £485,000 • 3 bed • 1 bath • 735 ft²
3 bedroom semi-detached house for sale in Castle Drive, Kemsing, Sevenoaks, TN15 6RL, TN15 — £600,000 • 3 bed • 1 bath • 1030 ft²
5 bedroom semi-detached house for sale in Childsbridge Lane, Kemsing, Sevenoaks, TN15 — £750,000 • 5 bed • 2 bath • 1546 ft²
3 bedroom terraced house for sale in Collet Road, Kemsing, TN15 — £475,000 • 3 bed • 1 bath • 947 ft²


























































































































