L18 3LB - 2 bed verdala park apartment in Verdala Park, L18 3LB

View on Property Piper

2 bedroom apartment for sale in Verdala Park, Calderstones, Liverpool, L18

Summary - 24 VERDALA PARK LIVERPOOL L18 3LB

2 bed 1 bath Apartment

Top-floor, newly renovated two-bed close to Calderstones Park with garage and gardens.
Top-floor two-bedroom apartment, fully renovated
Open-plan lounge and dining with abundant natural light
Contemporary kitchen with integrated dishwasher, fridge/freezer, washer
Modern bathroom plus additional separate WC
New boiler and full re-wire completed in 2019
Garage and dedicated parking space included
Secluded, beautifully landscaped communal gardens; next to Calderstones Park
Leasehold with 955 years remaining; service charge approx £1,956 (average)
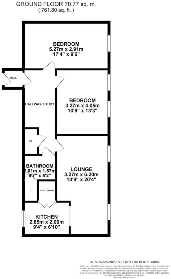
Set on the top floor of a well-kept block in Verdala Park, this two-bedroom apartment combines recent upgrades with a peaceful, park-side location. The accommodation has been fully renovated, with a contemporary open-plan living and dining area, a modern kitchen with integrated appliances, and a bathroom plus an additional WC — all arranged across a comfortable 761 sq ft.

Practical benefits include a new central heating boiler and full re-wire completed in 2019, double glazing, and a garage with dedicated parking. Residents also enjoy beautifully landscaped, secluded communal gardens and immediate access to Calderstones Park — ideal for family outings and outdoor time.

The property is leasehold with a very long remaining term (955 years) and an average service charge of £1,956. It will suit buyers seeking a ready-to-move-in home near excellent local schools and green space; check access arrangements for the top-floor position if stairs or mobility are a concern.

This apartment offers a modern, low-maintenance base in an affluent area of Calderstones — well-suited to families or professionals wanting space, privacy and easy access to parkland.

Property Details

Brochure Descriptions

Image Descriptions

Floorplan Description

Rooms

Textual Property Features

Target Audience

AI Tags

Detected Visual Features

EPC Details

Nearby Schools

Nearest Bars And Restaurants

,,,,}

Nearest General Shops

,,}

Nearest Grocery shops

,,}

Nearest Supermarkets

,,}

Nearest Religious buildings

,,}

Nearest Medical buildings

,,,}

Nearest Airports

}

Nearest Leisure Facilities

,,,,}

Nearest Tourist attractions

,,}

Nearest Train stations

,,,,}

Nearest Bus stations and stops

,,,,}

Nearest Hotels

,,}

Tags

Similar Properties

Meta

High Res Images

Compatible Images

Low res Images

Thumbnails

Raw Images

High Res Floorplan Images

Compatible Floorplan Images

Low res Floorplan Images

FloorplanImages Thumbnail

Raw Floorplan Images