**Standout Features:**
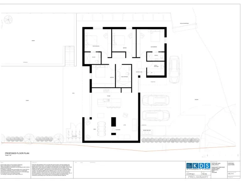
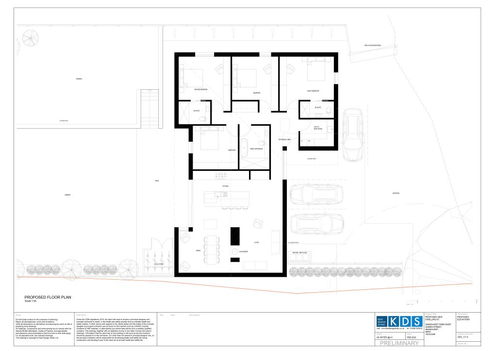
- **Approved redevelopment:** Opportunity to transform a former farm shop site into a stunning four-bedroom detached house with modern amenities.
- **Spacious layout:** Planned open-plan kitchen, sitting, and dining area, ensuring a bright and social space.
- **Generous square footage:** Approximately 2,200 sq ft of total living space, providing ample room for family comfort.
- **Off-road parking:** Designated driveway with three parking spaces.
- **Scenic surroundings:** Nestled in the picturesque High Weald countryside, offering serene views and a peaceful atmosphere.
- **Proximity to amenities:** Local schools, countryside walks, and community facilities within a short distance.
**Concerns:**
- **Renovation required:** While the grounds are expansive and inviting, the current structure needs redevelopment to realize full potential.
- **Slow broadband speeds:** Ideal for relaxation, but connectivity may be an issue for remote working or streaming.
**Summary:**
Embrace the opportunity to create your dream home on this expansive 1.69-acre plot in the desirable village of Sandhurst, Cranbrook. With planning approval in place for a contemporary four-bedroom detached dwelling, this property showcases an innovative layout featuring an inviting open-plan kitchen and living area, along with a convenient guest suite and master bedroom with ensuite. The tranquil surroundings provide an idyllic rural lifestyle, complete with mature trees framing the property. While the building requires renovation, the generous footprint allows for creative development flexibility. Perfect for families seeking a peaceful retreat, this property also boasts excellent local schools and essential amenities within easy reach. Don't miss this unique chance—properties like this are sure to draw interest quickly!
4 bedroom detached house for sale in Front Road, Woodchurch TN26 3SA, TN26 — £475,000 • 4 bed • 1 bath • 4200 ft²
Land for sale in Bankside, Goudhurst Road, Cranbrook, Kent. TN17 2PZ, TN17 — £950,000 • 4 bed • 5 bath • 4700 ft²
4 bedroom detached house for sale in Rye Road, Sandhurst, Kent, TN18 5HP, TN18 — £995,000 • 4 bed • 2 bath • 2546 ft²
Equestrian facility for sale in Bankside, Goudhurst Road, Cranbrook, Kent. TN17 2PZ, TN17 — £950,000 • 3 bed • 1 bath • 4707 ft²
Plot for sale in Maytham Road, TN17 — £595,000 • 4 bed • 1 bath • 2890 ft²
Plot for sale in Lot 2 - Jarvis Lane, Goudhurst, TN17 — £180,000 • 1 bed • 1 bath


















































