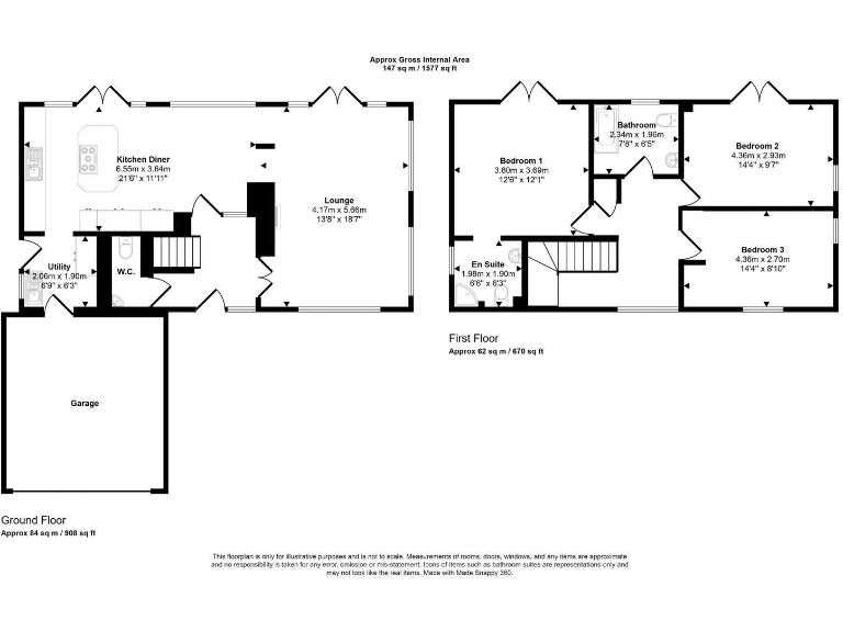
**Standout Features:**
- Architect-designed three-bedroom detached home
- Open-plan kitchen with integrated appliances & central island
- Floor-to-ceiling windows and multi-fuel stove in the living room
- Landscaped garden complete with hot tub and woodland views
- Heated driveway with frost-controlled system
- Double garage and large elevated outdoor terrace
- Built in 2005, offering modern comforts with potential for personalization
**Summary:**
Discover the unique charm of Wickentree, an architect-designed, three-bedroom detached home nestled in the picturesque Saltburn-by-the-Sea. Built in 2005, this property features an inviting open-plan kitchen with integrated appliances, a spacious living area enhanced by floor-to-ceiling windows, and a cozy multi-fuel stove, perfect for welcoming gatherings. Enjoy seamless indoor-outdoor living with beautifully landscaped gardens that back onto serene woodlands, complete with a relaxing hot tub and an expansive terrace for outdoor entertaining.
With modern comforts including underfloor heating, a heated driveway, and a double garage, this spacious home offers a blend of luxury and practicality. However, it's important to note that broadband speeds are slow, which may affect those reliant on high-speed internet. This home is ideally located near reputable schools and an array of local amenities, including charming cafes and shops, making it perfect for families or professionals seeking an affluent suburban lifestyle. Don’t miss out on owning this one-of-a-kind home—experience the tranquility and modern elegance it has to offer today.
4 bedroom detached house for sale in Church View, Saltburn-By-The-Sea, TS12 — £600,000 • 4 bed • 3 bath • 1786 ft²
6 bedroom detached house for sale in Valley View, Victoria Terrace, Saltburn by the Sea, TS12 1JH, TS12 — £1,100,000 • 6 bed • 5 bath • 4790 ft²
3 bedroom semi-detached house for sale in The Green, Saltburn-By-The-Sea, Cleveland, TS12 — £254,500 • 3 bed • 2 bath • 1335 ft²
3 bedroom house for sale in Gill Street, Saltburn-By-The-Sea, TS12 — £300,000 • 3 bed • 2 bath • 1260 ft²
4 bedroom detached house for sale in Toll Bridge Cottage, Saltburn Lane, Saltburn-By-The-Sea, North Yorkshire, TS12 — £899,999 • 4 bed • 3 bath • 1387 ft²
4 bedroom detached house for sale in Brook Park, Briggswath, YO21 — £399,950 • 4 bed • 1 bath • 1314 ft²






































































