Move-in ready flat with private garden and modern kitchen, ideal for new buyers.
- Freshly refurbished throughout with new carpets
- Bright lounge with modern electric fire and built-ins
- Refitted kitchen with contemporary units and tiled splashbacks
- Private rear garden and tiered drying green
- Gas central heating and double glazing throughout
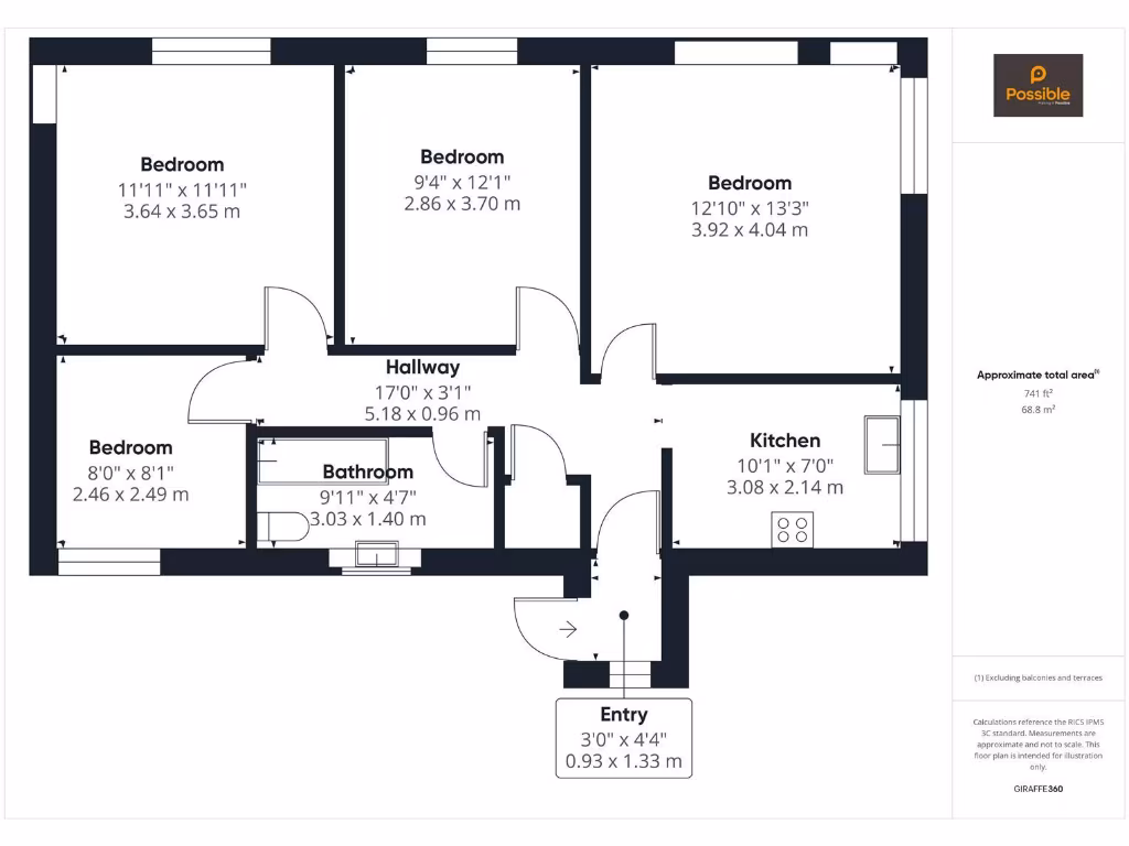
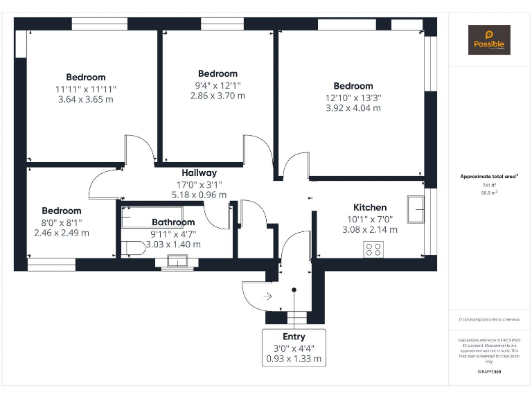
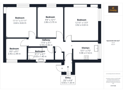
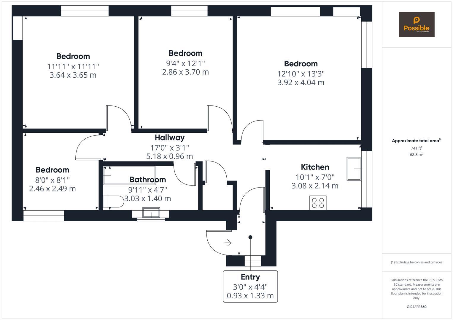
- Single bathroom serving three bedrooms
- Small overall size (approx. 741 sq ft)
- Slow local broadband; on-street parking only
This ground-floor three-bedroom flat in the heart of Blairgowrie is freshly refurbished and move-in ready. New carpeting and fresh décor throughout make the accommodation light and comfortable, with a bright lounge centred on a modern electric fire and a refitted kitchen with contemporary units.
Externally there is a private rear garden with lawn and mature trees, plus a tiered drying green — rare for town-centre flats. Practical comforts include gas central heating and double glazing, and the pavement-fronted period terrace gives character and street presence.
Buyers should note the property is modest in overall size (approx. 741 sq ft) with a single bathroom, and broadband speeds in the area are reported as slow. On-street parking only and the neighbourhood records higher levels of deprivation, which may influence resale or rental demand. The combination of low asking price and ready condition makes this attractive for first-time buyers seeking an affordable family home or investors targeting local rental income.
Viewing is recommended to assess room proportions and layout suitability. The ground-floor position will suit buyers wanting easy access, but check individual needs for privacy and security given the street-level entrance.
2 bedroom flat for sale in Riverside Park, Blairgowrie, Perth and Kinross, PH10 — £140,000 • 2 bed • 2 bath • 817 ft²
2 bedroom semi-detached house for sale in 4 Reform Street, Blairgowrie, PH10 6BD, PH10 — £120,000 • 2 bed • 1 bath • 851 ft²
2 bedroom flat for sale in Church Street, Newtyle, Blairgowrie, PH12 — £93,000 • 2 bed • 1 bath • 789 ft²
3 bedroom house for sale in Blackthorn Place,, Blairgowrie, PH10 — £199,950 • 3 bed • 2 bath • 883 ft²
3 bedroom house for sale in 37 William Dickson Drive, Blairgowrie, Perth and Kinross, PH10 — £225,000 • 3 bed • 2 bath • 969 ft²
1 bedroom retirement property for sale in Darroch Gate, Coupar Angus Road, Blairgowrie, Perthshire, PH10 — £130,000 • 1 bed • 1 bath • 603 ft²


































































