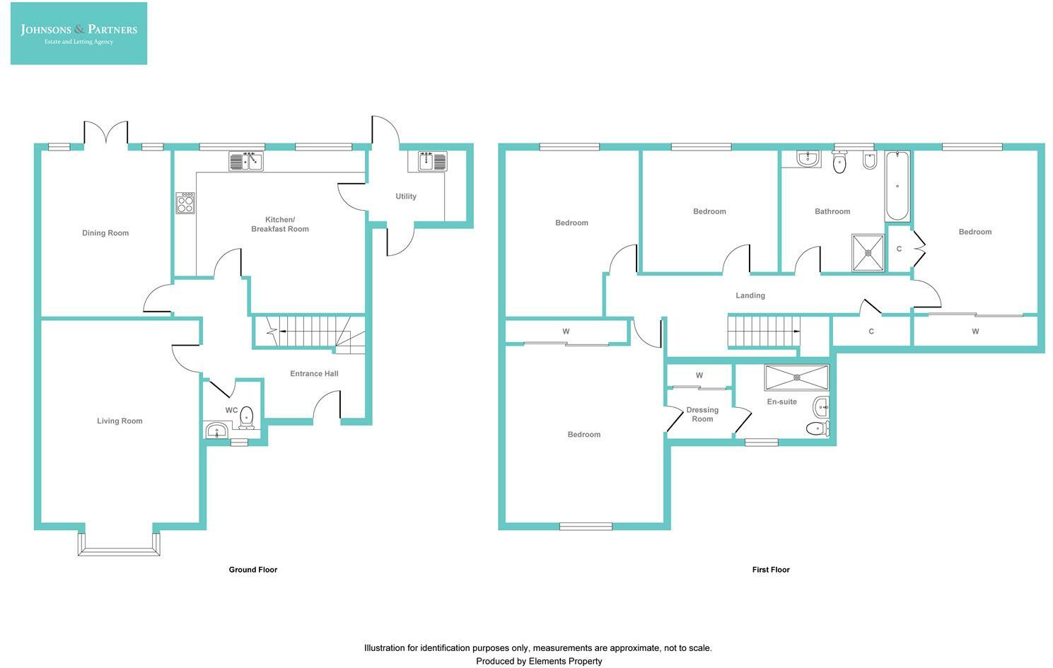
**Standout Features:**
- Four generously sized double bedrooms
- Principal bedroom suite with dressing room & en suite
- Two spacious reception rooms
- Breakfast kitchen and separate utility room
- Double garage with ample driveway parking
- Low-maintenance private rear garden
- Attractive, affluent neighborhood with great amenities
- Chain-free, expediting the purchase process
This impressive four-bedroom detached house on Brooklands Drive in Gedling, Nottingham, offers a perfect blend of space, comfort, and potential for family living. The property features a vast and welcoming layout, complete with a bay-fronted lounge and a dedicated dining room, both ideal for hosting family gatherings or cozy nights in. The breakfast kitchen is thoughtfully designed with ample cabinetry, complemented by a separate utility area for added convenience.
Upstairs, the principal bedroom suite provides an inviting retreat with its own dressing room and en suite, while three additional double bedrooms ensure plenty of space for family and guests. A family bathroom completes the upper level, catering well to daily routines.
Set on a generous plot, the home is enhanced by a double garage and a gated driveway that accommodates multiple vehicles. The low-maintenance rear garden provides a peaceful escape, perfect for outdoor entertaining or unwinding after a long day.
Convenience is further amplified by proximity to well-regarded schools, shops, and recreational facilities in this affluent, family-oriented community. With no upward chain, this property allows for a smooth transition into a new home. Explore the potential of this remarkable property before it’s gone—schedule your personal viewing today!
3 bedroom detached house for sale in Brooklands Drive, Gedling, Nottinghamshire, NG4 3GU, NG4 — £400,000 • 3 bed • 1 bath • 1131 ft²
4 bedroom detached house for sale in Axford Close, Gedling, Nottinghamshire, NG4 4BB, NG4 — £395,000 • 4 bed • 2 bath • 1306 ft²
4 bedroom detached house for sale in Northbank, Freda Avenue, Gedling NG4 — £595,000 • 4 bed • 2 bath • 3176 ft²
4 bedroom detached house for sale in Lowdham Road, Gedling, Nottingham, NG4 — £325,000 • 4 bed • 1 bath • 1327 ft²
4 bedroom detached house for sale in Jessops Lane, Gedling, Nottingham, NG4 — £380,000 • 4 bed • 2 bath • 1399 ft²
3 bedroom detached house for sale in Waterhouse Lane, Gedling, NG4 — £395,000 • 3 bed • 1 bath • 1109 ft²






































































































































































































