**Key Features:**
- Five-bedroom semi-detached property, HMO-ready
- Ideal location close to the University of Worcester
- Off-road parking and private rear garden
- Chain free and freehold tenure
- EPC rating D with improvement potential
- High rental yield potential for students and professionals
- Flexible layout suitable for both HMO and family use
- Well-connected by public transport with local amenities nearby
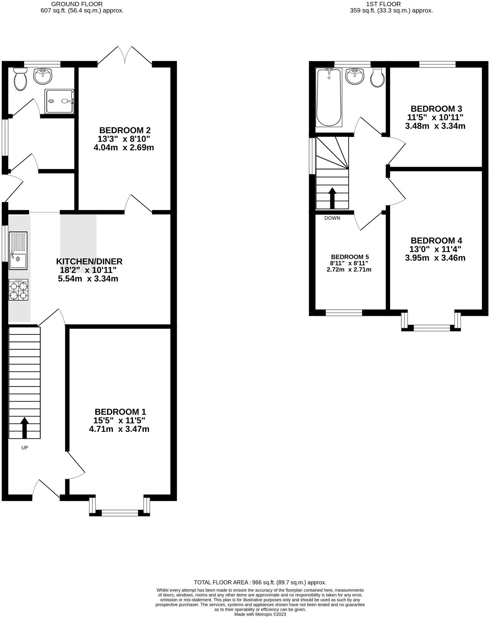
This spacious five-bedroom semi-detached property on Blenheim Road presents an excellent investment opportunity. Currently operating as a licensed House in Multiple Occupation (HMO), it is perfectly situated to attract students and young professionals seeking convenient living close to the University of Worcester. Offering immediate rental income, the property features a flexible layout, good-sized bedrooms, and communal spaces, along with off-road parking and a private garden, making it appealing to potential tenants and family buyers alike.
With an EPC rating of D, there is ample scope for future energy efficiency updates that could enhance value. The well-connected location ensures easy access to local amenities and public transport, supporting consistent occupancy rates and solid long-term capital growth potential. Whether you're looking to maintain it as a profitable rental or convert it into a large family home, this property offers remarkable adaptability. Don't miss this rare find in a thriving community—investment opportunities like this are not available for long!
5 bedroom semi-detached house for sale in Happy Land North, Worcester, WR2 — £275,000 • 5 bed • 2 bath • 1475 ft²
5 bedroom semi-detached house for sale in Rowley Hill Street, Worcester, Worcestershire, WR2 5LN, WR2 — £290,000 • 5 bed • 2 bath • 1206 ft²
5 bedroom semi-detached house for sale in Lear Close, Worcester, WR2 — £280,000 • 5 bed • 2 bath • 1432 ft²
7 bedroom house of multiple occupation for sale in Hallow Road, Worcester, WR2 — £725,000 • 7 bed • 7 bath • 1567 ft²
4 bedroom terraced house for sale in Comer Road, Worcester, WR2 — £250,000 • 4 bed • 1 bath
5 bedroom house for sale in Blakefield Road, Worcester, Worcestershire, WR2 — £350,000 • 5 bed • 4 bath • 856 ft²






















































































