BN25 1DB - 3 bed seaford townhouse renovated in Richmond Road, BN25 1DB

View on Property Piper

3 bedroom house for sale in Richmond Road, Seaford, BN25

Summary - 3 RICHMOND ROAD SEAFORD BN25 1DB

3 bed 2 bath House

Bright three-bed townhouse close to beach, station and town centre.
Newly renovated three-bedroom mid-terrace townhouse
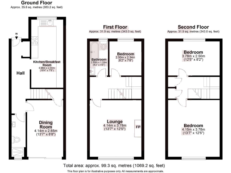
This recently renovated three-bedroom townhouse on Richmond Road offers a practical family layout across three floors, a bright main lounge and a southwest-facing courtyard ideal for outdoor seating. The ground floor benefits from wet underfloor heating and a modern kitchen fitted with integrated appliances and a small breakfast bar. Two off-street parking spaces are a rare convenience so close to town and the train station.

Upstairs the property provides good-sized bedrooms including a master capable of accommodating a king bed and generous storage. Bathrooms are contemporary: a tiled modern family bathroom with a freestanding roll-top bath and a separate shower room on the lower level. Double glazing and a gas boiler with radiators add efficiency, and cavity walls are assumed insulated.

Location is a key asset — walkable to Seaford town centre, the beach and the train station, with several well-rated primary and secondary schools nearby. Broadband and mobile signal are strong, making the house suitable for remote working or family connectivity.

Notable drawbacks are factual and important: the house sits on a relatively small plot and is a mid-terrace built in the 1980s, so outdoor space is limited. The local crime level is reported as high for the area; buyers should satisfy themselves about security measures. The property is freehold and council tax is described as affordable.

Property Details

Brochure Descriptions

Image Descriptions

Rooms

Textual Property Features

Target Audience

AI Tags

Detected Visual Features

EPC Details

Nearby Schools

Nearest Bars And Restaurants

,,,,}

Nearest General Shops

,,}

Nearest Grocery shops

,,}

Nearest Supermarkets

,,}

Nearest Religious buildings

,,}

Nearest Medical buildings

,,,}

Nearest Leisure Facilities

,,,,}

Nearest Tourist attractions

,,}

Nearest Train stations

,,,,}

Nearest Bus stations and stops

,,,,}

Nearest Hotels

,,}

Tags

Local Market Stats

AirBnB Data

Similar Properties

Meta

High Res Images

Compatible Images

Low res Images

Thumbnails

Raw Images

High Res Floorplan Images

Compatible Floorplan Images

Low res Floorplan Images

FloorplanImages Thumbnail

Raw Floorplan Images