Contemporary two-bed apartment with gated parking and excellent transport links..
2 double bedrooms, 2 bathrooms, including ensuite
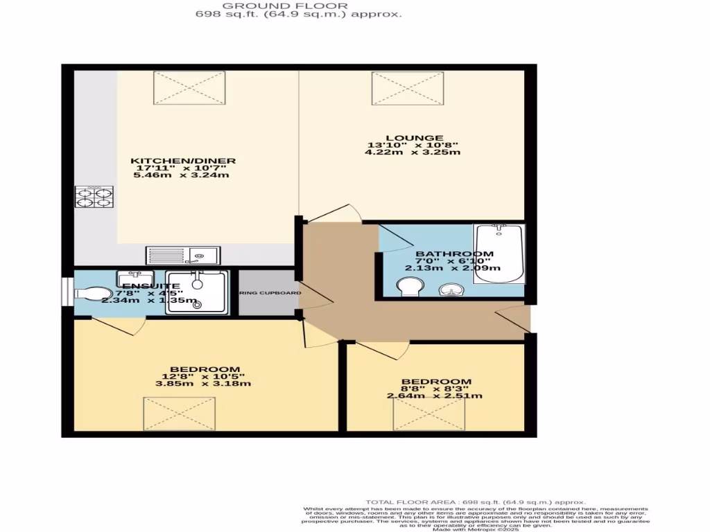
Open-plan living/dining/kitchen with oak flooring
Modern Sigma 3 kitchen with integrated appliances
Gated residents' parking and lift access to all floors
Long lease (~900 years) and modest ground rent (£175)
Walking distance to train station, shops and city centre amenities
Slow broadband speeds in the area — limited for heavy remote working
Located in a very deprived local area — may affect resale/rental demand
This two-bedroom, two-bath apartment occupies a contemporary development near Newport city centre, giving direct access to shops, cafés, the train station and quick M4 links to Cardiff and Bristol. The layout includes an open-plan living/dining/kitchen with oak flooring, a modern fitted kitchen with integrated appliances, and good natural light from roof windows in one bedroom.
Practical strengths include gated residents' parking, lift access, intercom entry and spacious communal areas — useful for commuters and those seeking low-maintenance city living. The long lease (c.900 years) and modest ground rent (£175) reduce longer-term ownership costs compared with many leasehold flats.
Notable drawbacks are slow broadband speeds in the area and the location being in a very deprived ward, which may affect resale or rental demand. The apartment is average-sized (~700 sq ft) and presented in contemporary style; there is no indication of recent major structural works or flooding risk.
Overall this property will suit first-time buyers or buy-to-let investors wanting a low-maintenance, well-located apartment with parking and strong transport links, provided they accept the slower broadband and the local socioeconomic context.
2 bedroom apartment for sale in Anderson Grove , Newport, NP19 — £130,000 • 2 bed • 1 bath • 525 ft²
2 bedroom apartment for sale in Westfield Gardens, Malpas, NP20 — £235,000 • 2 bed • 1 bath
2 bedroom flat for sale in Rodney Road, Devonia House, NP19 — £140,000 • 2 bed • 1 bath • 603 ft²
2 bedroom apartment for sale in Amelia Way, Newport, Gwent, NP19 — £120,000 • 2 bed • 2 bath • 711 ft²
1 bedroom flat for sale in Alicia Crescent, Newport, NP20 — £100,000 • 1 bed • 1 bath • 420 ft²
2 bedroom flat for sale in Gold Tops, St. Cecilia Court, NP20 — £160,000 • 2 bed • 2 bath • 441 ft²










































































































































