**Standout Features:**
- Historic building with Victorian architecture, built in 1913.
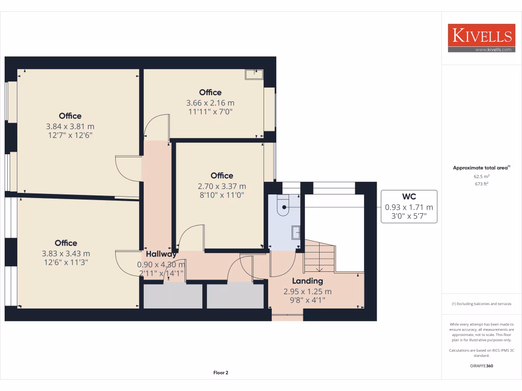
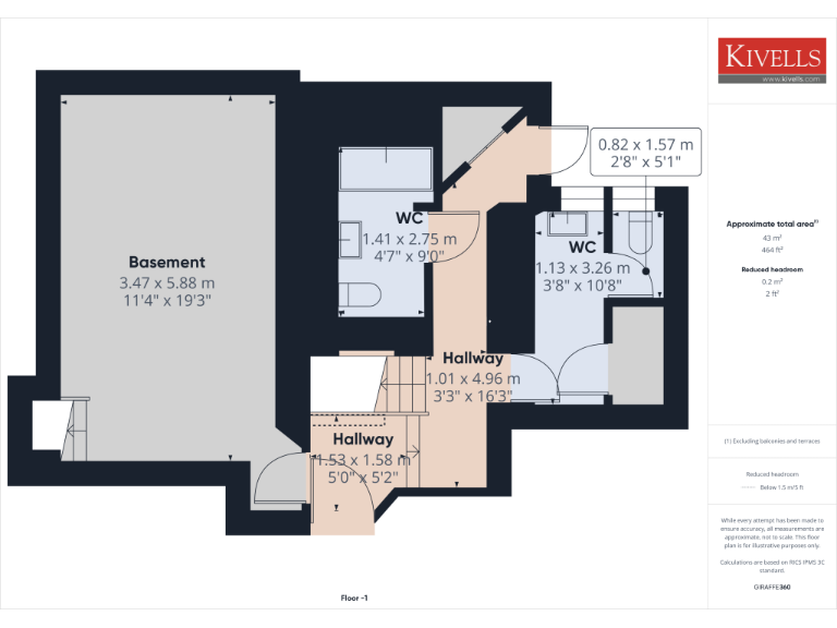
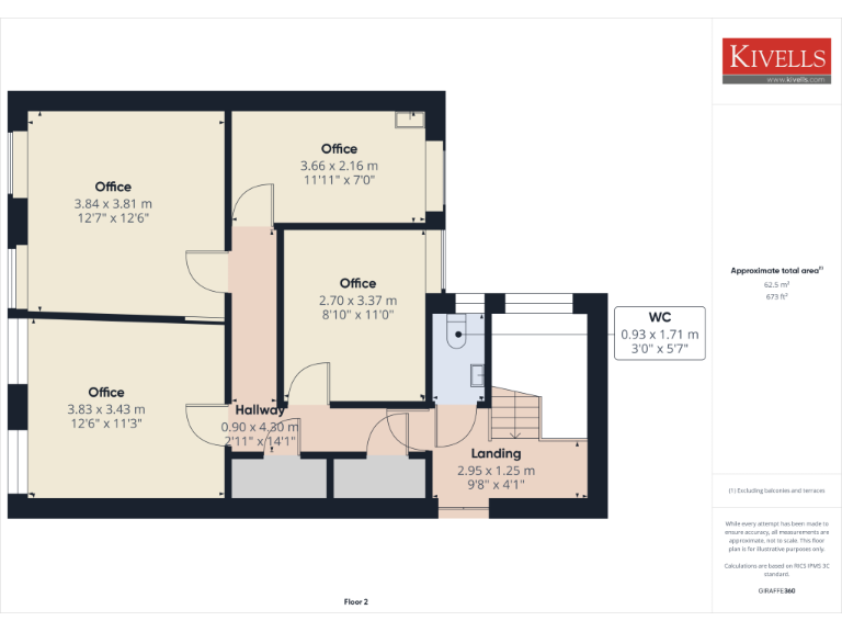
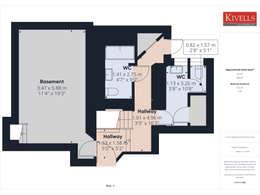
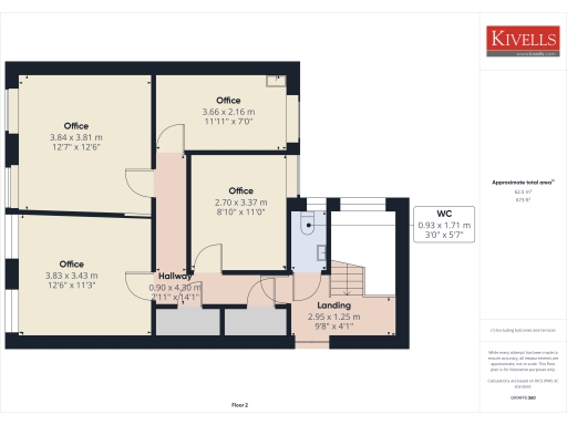
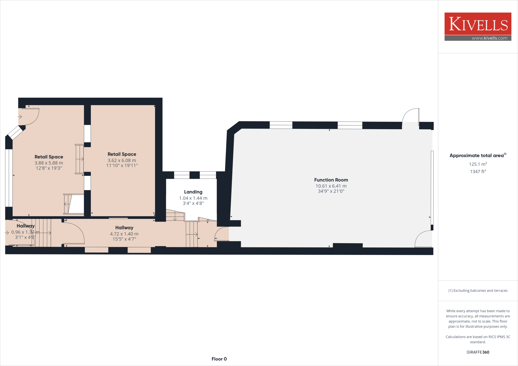
- Large multi-use space across three floors, ideal for commercial ventures.
- Prime location in Liskeard Town Centre with a large shopfront window.
- Significant income potential with possibilities for conversion (subject to permissions).
- Freehold tenure allowing immediate possession.
**Concise Summary:**
Discover a remarkable opportunity to own a piece of history in the heart of Liskeard. The Liberal Building, constructed in 1913, combines stunning Victorian architecture with expansive space ideal for commercial use. With approximately 3,160 square feet across three levels, this freehold property offers a large ground-floor retail area featuring a prominent shopfront, separate function room and bar, and versatile office spaces above. Its central location not only provides excellent visibility but also immediate access to the town's amenities, making it perfect for a range of businesses, from cafes to community hubs.
While the property does show signs of wear and requires some maintenance, its structural integrity offers a solid foundation for future renovations or conversions—allowing potential buyers to tailor the space to their needs. This mixed-use building is chain-free and ready for immediate takeover, making it a compelling choice for investors or entrepreneurs looking to establish a strong presence in this bustling market town. Don't miss out on the chance to transform this historic asset into a thriving venture!
Office for sale in Windsor Place, Liskeard, Cornwall, PL14 — £50,000 • 1 bed • 1 bath • 2403 ft²
6 bedroom terraced house for sale in Dean Street, Liskeard, PL14 — £200,000 • 6 bed • 2 bath • 3645 ft²
3 bedroom end of terrace house for sale in Pound Street, Liskeard, Cornwall, PL14 — £180,000 • 3 bed • 2 bath • 2000 ft²
High street retail property for sale in Fore Street, East Looe, Looe, Cornwall, PL13 — £575,000 • 4 bed • 1 bath • 1163 ft²
High street retail property for sale in Windsor Place Cards & Gifts, 12-14 Windsor Place, Liskeard, Cornwall, PL14 4BH, PL14 — £40,000 • 1 bed • 1 bath • 1498 ft²
High street retail property for sale in Fore Street, Liskeard, Cornwall, PL14 3JA, PL14 — £160,000 • 1 bed • 1 bath


















































