Chain-free four-bed Victorian terrace with long garden — ideal for renovation buyers close to station.
Chain free with immediate possession possible
C. 80ft enclosed rear garden, good outdoor space
Four bedrooms; flexible layout with downstairs bedroom/reception
On-street parking only; no private driveway
Visible damp/mould and dated interior needing modernization
Solid brick walls likely lack insulation; retrofit required
Single bathroom for three/four bedrooms
Higher local crime rate; consider security measures
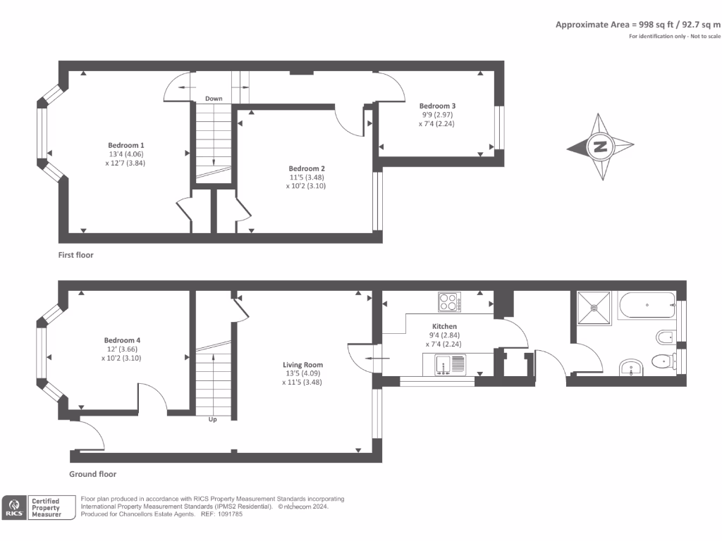
This mid-terrace Victorian townhouse offers flexible four-bedroom living within easy reach of High Wycombe town centre and the train station. With no onward chain and a generous c.80ft enclosed rear garden, it suits buyers wanting space and straightforward access to the M40 and local amenities.
The property retains period features externally and provides two reception rooms plus a separate kitchen and utility. Internally the house requires modernization: dated fittings, visible damp/mould in the living area, and likely upgrade work to heating and insulation given solid brick walls. There is a single family bathroom serving three/four bedrooms.
Practical positives include freehold tenure, double glazing, mains gas central heating, on-street parking and affordable council tax. The location benefits from several well-rated schools nearby, fast broadband and excellent mobile signal—appealing to first-time buyers or young families prepared to renovate for long-term value.
Drawbacks are material and should be factored into purchase plans: evidence of damp/mould, roof and cosmetic repairs noted externally, limited overall size and a small plot despite the long garden. The surrounding area records higher crime levels, which may influence suitability for some buyers. Sold chain-free for a quicker move, this property is best for those seeking a project in a convenient town location.
4 bedroom terraced house for sale in High Wycombe, Buckinghamshire, HP11 — £350,000 • 4 bed • 2 bath • 1315 ft²
3 bedroom terraced house for sale in Upper Green Street, High Wycombe (no Chain), HP11 — £300,000 • 3 bed • 1 bath • 805 ft²
2 bedroom terraced house for sale in Amersham Road, High Wycombe (no Chain), HP13 — £340,000 • 2 bed • 1 bath • 698 ft²
3 bedroom end of terrace house for sale in Gordon Road, High Wycombe, HP13 — £325,000 • 3 bed • 1 bath • 930 ft²
4 bedroom terraced house for sale in Abercromby Avenue, HIGH WYCOMBE, HP12 — £300,000 • 4 bed • 1 bath • 883 ft²
3 bedroom terraced house for sale in Chapel Lane, High Wycombe, HP12 — £325,000 • 3 bed • 2 bath • 1252 ft²










































