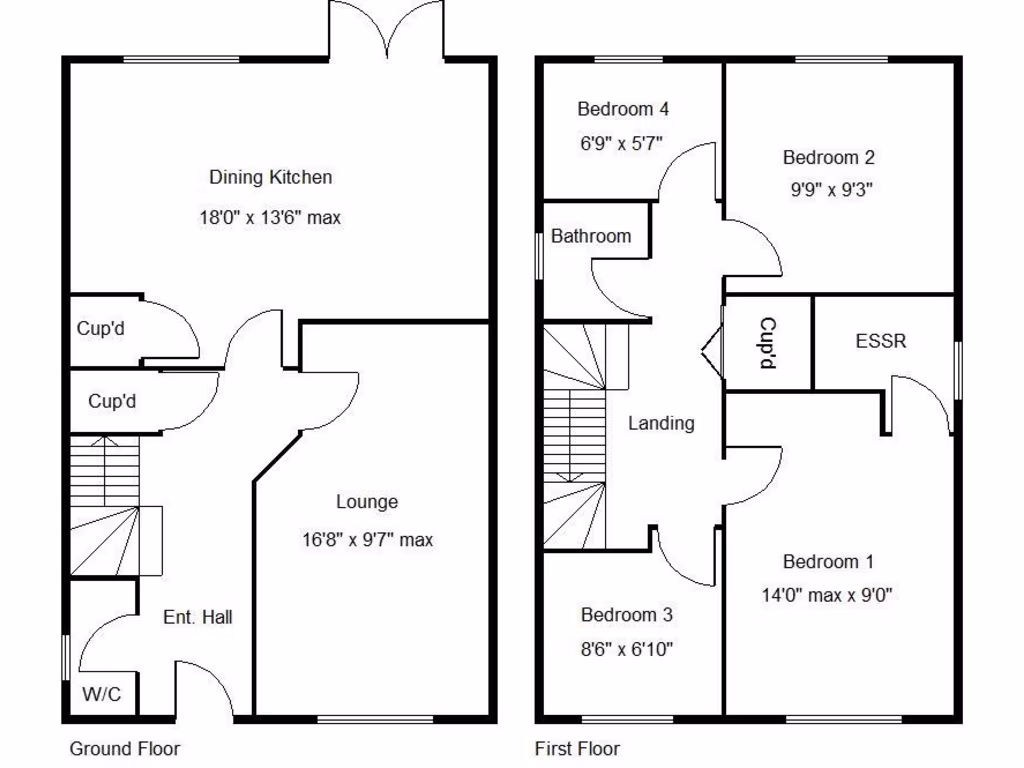
**Standout Features:**
- Modern four-bedroom detached house built in 2018
- Open plan dining kitchen with integrated appliances and breakfast island
- Spacious lounge with large windows for natural light
- Master bedroom with en suite shower room
- Enclosed rear garden with patio area and timber shed
- Driveway leading to detached brick garage
- NHBC warranty, gas central heating, and double glazing
**Additional Details:**
- Convenient access to local amenities along Wheatley Hall Road
- Family-friendly design with ample space for children
- Fast broadband and excellent mobile signal in the area
This modern four-bedroom detached house on Yarborough Drive is a perfect opportunity for families or investors seeking a comfortable, spacious home in a desirable neighborhood. At approximately five years old, it boasts a contemporary open plan dining kitchen filled with integrated appliances, seamlessly flowing into a bright and airy lounge that features abundant natural light and a cozy ambiance. The master bedroom offers a luxury en suite, while three additional well-sized bedrooms provide ample room for family or guests.
The outdoor space includes an enclosed rear garden complete with a stone-paved patio, perfect for entertaining or soaking up the sun, along with a detached garage for practical storage solutions. Notably, the property is conveniently situated near local shops and amenities, making daily errands a breeze.
Don’t miss this opportunity to secure a modern family home in a popular area—viewing is highly recommended!
4 bedroom detached house for sale in Athelstane Crescent, Edenthorpe, Doncaster, DN3 — £300,000 • 4 bed • 2 bath • 1052 ft²
4 bedroom detached house for sale in Horton View, Kirk Sandall, Doncaster, DN3 — £275,000 • 4 bed • 2 bath • 931 ft²
4 bedroom detached house for sale in Newfield Close, Barnby Dun, Doncaster, DN3 — £320,000 • 4 bed • 2 bath • 1178 ft²
4 bedroom detached house for sale in Wintersett Drive, Lakeside, Doncaster, DN4 — £315,000 • 4 bed • 2 bath • 1095 ft²
4 bedroom detached house for sale in Harewood Close, Balby, Doncaster, South Yorkshire, DN4 — £260,000 • 4 bed • 2 bath • 1404 ft²
3 bedroom semi-detached house for sale in Gosford Road, Wheatley, DN2 — £190,000 • 3 bed • 2 bath • 822 ft²














































































