**Standout Features:**
- Charming two-bedroom Victorian mid-terrace property
- Large, gated double-width block-paved driveway for off-road parking
- Modern fitted kitchen with storage space
- Cozy living room with a log burner
- Well-maintained garden with grassed area and patio
- Desirable views of Stevens Park
**Notable Concerns:**
- Small overall size (551 sq ft)
- Structural condition assumed to be without wall insulation
- Above-average crime rate in the area
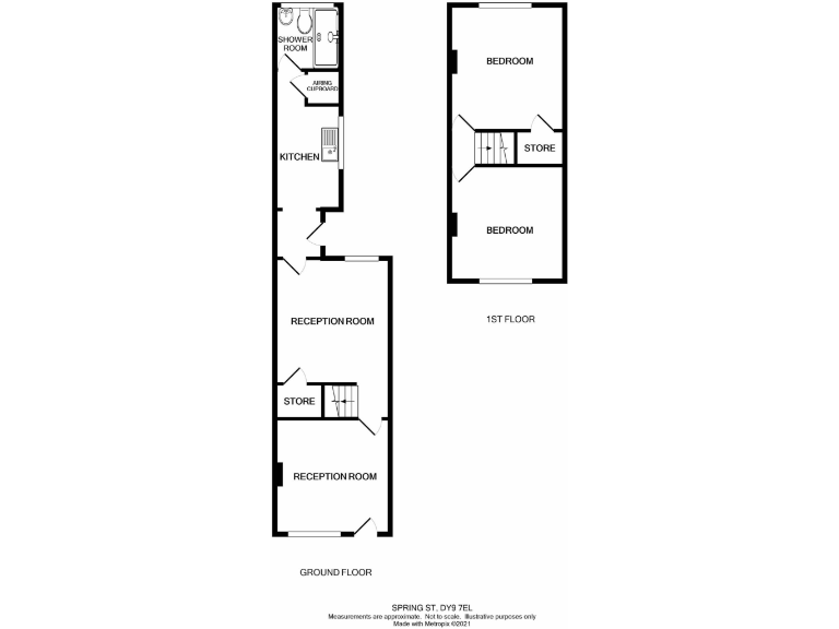
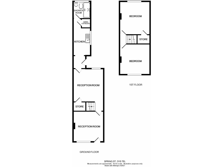
Nestled in the heart of Lye, Stourbridge, this charming two-bedroom terraced home offers a blend of modern convenience and cozy charm. The inviting living room features a log burner, perfect for cozy nights in, while the bright, separate dining area is ideal for family gatherings. The well-appointed modern kitchen includes ample storage, ensuring practical living for busy households. Step outside to a delightful rear garden with both grassy areas and a patio, perfect for enjoying picturesque views of Stevens Park.
With a competitive asking price of £186,000 and council tax at an affordable level, this property presents an excellent opportunity for first-time buyers or investors looking to enter the rental market. Enjoy the security of a freehold tenure and flexibility for future renovations. Positioned close to several good-rated local schools and essential amenities, this property is a rare find in a constrained market. Act quickly—this welcoming home won't be available for long!
2 bedroom end of terrace house for sale in Cemetery Road, Stourbridge, DY9 — £205,000 • 2 bed • 1 bath • 1281 ft²
2 bedroom end of terrace house for sale in King Street, Lye, Stourbridge, DY9 — £160,000 • 2 bed • 1 bath • 460 ft²
2 bedroom end of terrace house for sale in Worcester Street, Stourbridge, DY8 — £220,000 • 2 bed • 1 bath • 915 ft²
2 bedroom terraced house for sale in York Street, Kidderminster, Worcestershire, DY10 — £170,000 • 2 bed • 1 bath • 691 ft²
2 bedroom terraced house for sale in Wheeler Street, Stourbridge, DY8 — £210,000 • 2 bed • 1 bath • 788 ft²
2 bedroom end of terrace house for sale in Harrison Road, Stourbridge, Amblecote, DY8 5XU, DY8 — £199,950 • 2 bed • 1 bath • 851 ft²










































































































