Single-storey living with garage and flexible living spaces for downsizers.
Large, level plot with sizeable rear garden and sunny aspect
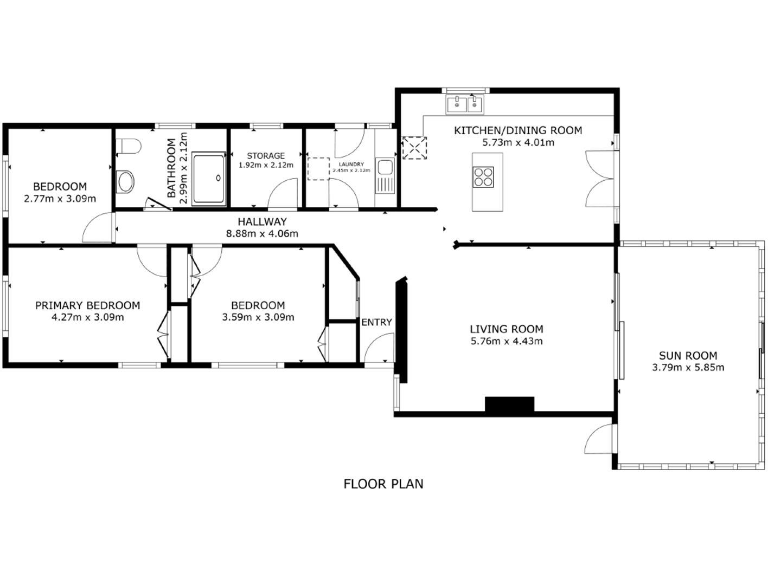
A roomy three-bedroom detached bungalow on a generous plot, this mid-century home suits buyers seeking single-storey living with space to adapt. The property offers a large driveway, integral garage and a substantial rear garden ideal for low-maintenance planting or accessible outdoor living.
Inside, the layout centres on a modern open-plan kitchen/diner, separate utility and a dedicated study—useful for hobbies or occasional home working. The bright living room flows to a sun room that overlooks the garden, creating a calm, private aspect. Double glazing and a gas boiler with radiators provide everyday comfort; the EPC is rated C.
Practical considerations: there is a single shower room for three double bedrooms and the house dates from the 1950s–60s, so some systems and finishes may need updating to suit long-term needs. Council Tax sits in band E and the local area records higher than average crime and significant deprivation indicators; buyers should weigh local social statistics alongside the property’s benefits.
This freehold bungalow will appeal to downsizers seeking one-level living with scope to personalise, or families wanting adaptable accommodation near Prescot town amenities and good transport links. A professional inspection is recommended to confirm the condition of services and any refurbishment scope before purchase.
3 bedroom detached bungalow for sale in Eccleston Gardens, St Helens, WA10 3BN, WA10 — £360,000 • 3 bed • 2 bath • 1680 ft²
3 bedroom bungalow for sale in Middlehey Avenue, Knowsley Village, Prescot, Merseyside, L34 — £325,000 • 3 bed • 1 bath • 1386 ft²
3 bedroom detached house for sale in Delph Lane, Whiston, Prescot, Merseyside, L35 — £290,000 • 3 bed • 2 bath • 1259 ft²
3 bedroom detached bungalow for sale in Lowther Drive, Prescot, L35 — £340,000 • 3 bed • 1 bath • 1466 ft²
3 bedroom detached bungalow for sale in Ladyfields, Sandfield Park, Liverpool, L12 — £575,000 • 3 bed • 2 bath • 1330 ft²
2 bedroom detached bungalow for sale in Tern Way, St Helens, WA10 — £375,000 • 2 bed • 1 bath • 1180 ft²


























































































