BN23 7RH - 2 bedroom semidetached bungalow for sale in Nightingale Clo…

View on Property Piper

2 bedroom semi-detached bungalow for sale in Nightingale Close, Eastbourne, BN23

Summary - 18 NIGHTINGALE CLOSE EASTBOURNE BN23 7RH

2 bed 1 bath Semi-Detached Bungalow

**Standout Features:**
- Two-bedroom semi-detached bungalow
- Spacious bay windowed lounge/dining room
- Large conservatory with ample natural light
- Refitted kitchen and modern shower room
- Secluded, low-maintenance garden with patio and shingle
- Garage with up-and-over door for convenient parking
- Positioned on a sizable corner plot for added privacy
- Close proximity to Langney Shopping Centre and local amenities

This inviting two-bedroom semi-detached bungalow located on the desirable Birds Estate presents an excellent opportunity for first-time buyers or investors. With a spacious bay-windowed lounge/dining room, a bright conservatory enhancing your living space, and a well-fitted kitchen, this home is move-in ready while still offering potential for personal updates. The modernized shower room and ample storage in the main bedroom ensure comfort and convenience.

Enjoy the serene, secluded garden that provides an ideal retreat with its low-maintenance design, perfect for enjoying outdoor moments in privacy. Plus, with a garage for parking or storage needs, you’ll appreciate the practicality this home brings. While nestled within easy walking distance to essential amenities at Langney Shopping Centre, the property is also within reach of several schools rated 'Good,' appealing to families. Don't miss the chance to view this gem—properties in this area tend to move quickly!

Property Details

Brochure Descriptions

Image Descriptions

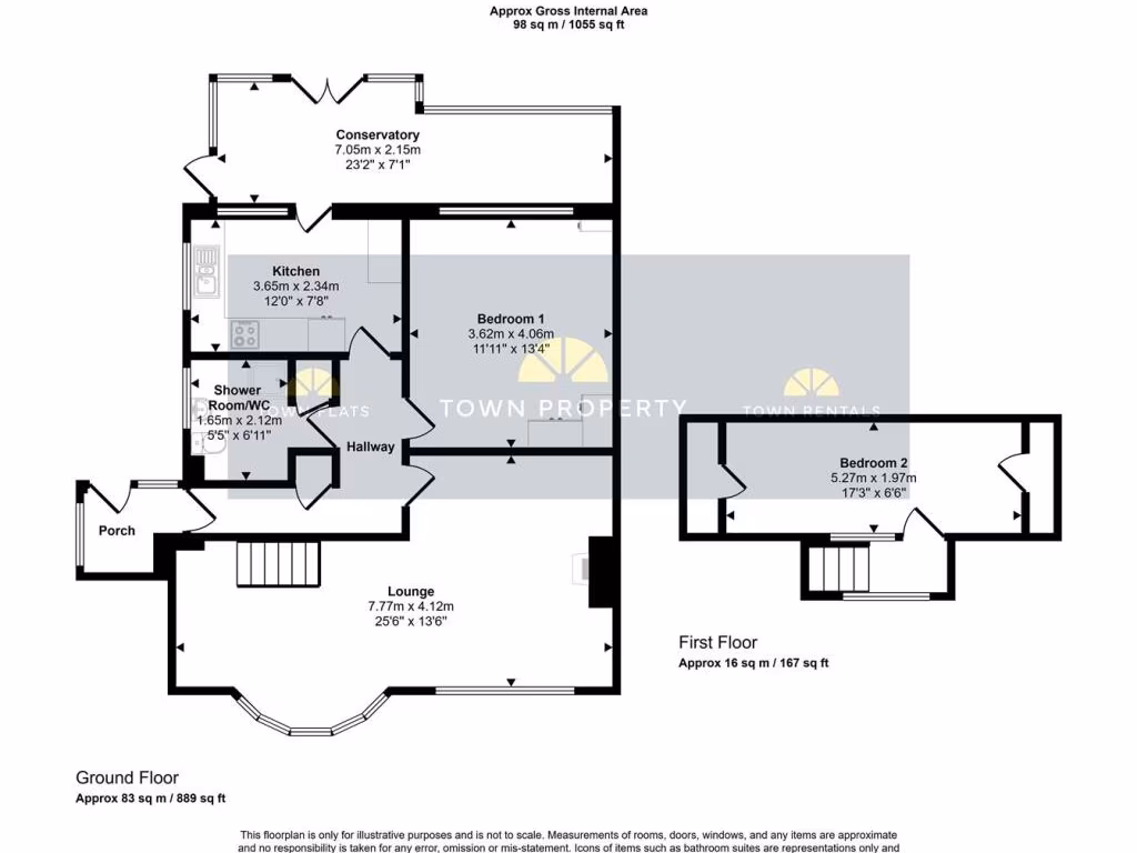
Floorplan Description

Rooms

Textual Property Features

Detected Visual Features

EPC Details

Nearby Schools

Nearest Bars And Restaurants

,,,,}

Nearest General Shops

,,}

Nearest Grocery shops

,,}

Nearest Supermarkets

,,}

Nearest Religious buildings

,,}

Nearest Medical buildings

,,,}

Nearest Leisure Facilities

,,,,}

Nearest Tourist attractions

,,}

Nearest Train stations

,,,,}

Nearest Bus stations and stops

,,,,}

Nearest Hotels

,,}

Tags

Local Market Stats

Similar Properties

Meta

High Res Images

Compatible Images

Low res Images

Thumbnails

Raw Images

High Res Floorplan Images

Compatible Floorplan Images

Low res Floorplan Images

FloorplanImages Thumbnail

Raw Floorplan Images