Quiet cul-de-sac location with garage, allocated parking and low-maintenance garden.
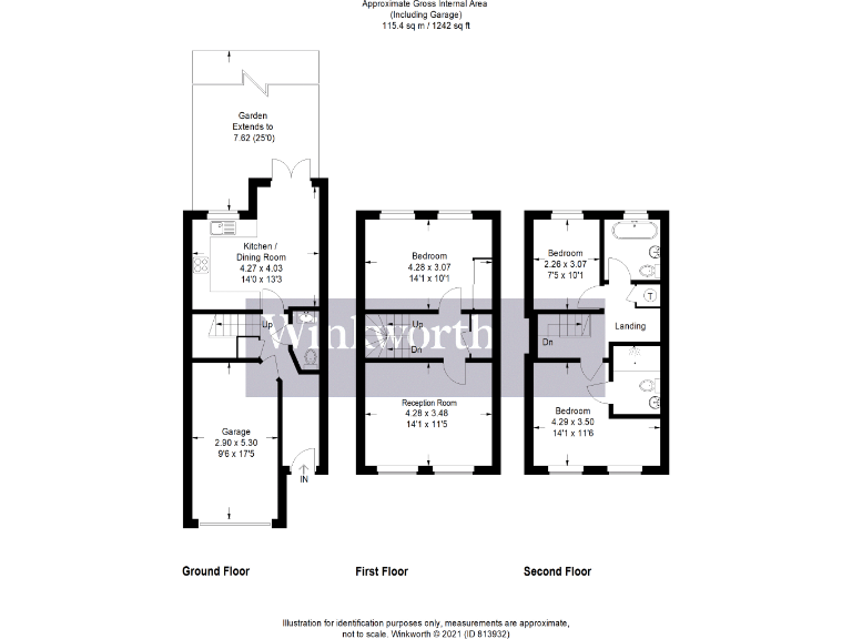
Three bedrooms across three floors, circa 1,242 sq ft
Built in 2016 by Linden Homes and offered freehold with NHBC warranty, this three-bedroom mid-terrace townhouse suits young families and commuters. The house spans around 1,242 sq ft over three floors with a ground-floor kitchen/diner, integral garage and guest cloakroom. Bright reception space and a double bedroom occupy the first floor, with the principal bedroom, ensuite, third bedroom and family bathroom on the top floor.
Practical daily life is well-supported: fast broadband and excellent mobile signal, allocated parking plus an integral garage, and a low-maintenance paved rear garden. Local schools rated Good and convenient public transport links make the location family-friendly for school runs and commuting into London.
Buyers should note the plot is small and the garden compact, so outdoor space is limited. Crime levels are above average locally and council tax is higher than typical, both factors to consider for household budgeting. Internally the property presents as modern and move-in ready, though buyers wanting larger outdoor areas or extensive landscaping potential may find it restrictive.
Overall this is a contemporary, well-specified townhouse delivering low-maintenance family living, sensible commuter access and the reassurance of recent build warranty, balanced against limited garden space and local crime and tax considerations.
3 bedroom terraced house for sale in Boyes Crescent, London Colney, St. Albans, AL2 — £700,000 • 3 bed • 2 bath • 1844 ft²
3 bedroom semi-detached house for sale in Elsons Mews, Welwyn Garden City, AL7 — £500,000 • 3 bed • 2 bath • 667 ft²
3 bedroom terraced house for sale in Swannells Walk, Chorleywood., WD3 — £525,000 • 3 bed • 2 bath • 1061 ft²
3 bedroom terraced house for sale in Heronswood Road, Welwyn Garden City, Hertfordshire, AL7 — £425,000 • 3 bed • 2 bath • 1074 ft²
4 bedroom terraced house for sale in Butterfly Crescent, Hemel Hempstead, HP3 — £575,000 • 4 bed • 3 bath • 1263 ft²
3 bedroom end of terrace house for sale in Coleridge Way, Borehamwood, WD6 — £595,000 • 3 bed • 2 bath • 1150 ft²






































































