Low running costs, modern layout and good schools — verify tenure and age..
EPC rating A with air source heat pump and solar PV panels
EV charging point, waste water heat recovery for lower running costs
Garage plus two parking spaces; small corner-plot garden
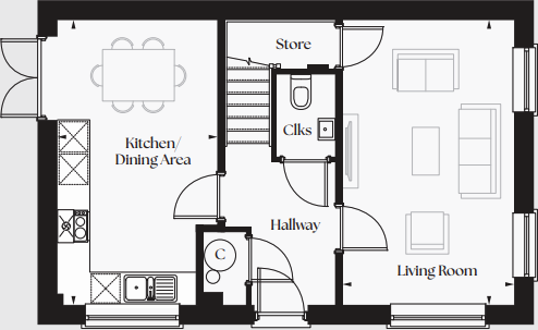
Open-plan kitchen/diner with French doors to garden; downstairs WC
2-year HarperCrewe and 10-year structural warranty included
Listed as new build but records show 1900–1929 — verify age/tenure
Area shows higher deprivation; check local services and long-term prospects
Fast broadband and nearby Good-rated primary/secondary schools
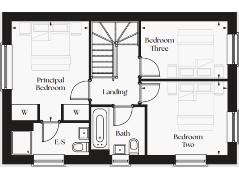
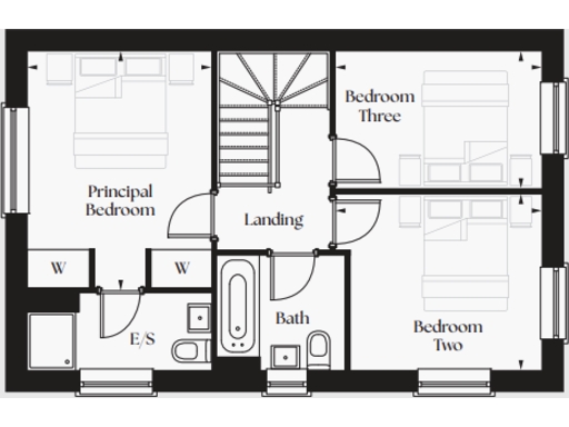
Set on a quiet corner plot in Hodthorpe, this three-bedroom detached house combines contemporary energy savings with family-friendly layout. The open-plan kitchen/diner opens to the garden via French doors, while a large dual-aspect living room offers flexible family space. Upstairs there are three bright bedrooms, a family bathroom and an en-suite to the principal bedroom.
Running costs are kept low by built-in sustainability: an air source heat pump, solar photovoltaic panels, an EV charging point and a waste water heat recovery system. The property benefits from an EPC rating A, a 2-year HarperCrewe warranty and a 10-year structural warranty, helping reduce short-term maintenance risk.
Practical conveniences include a downstairs WC, garage plus two parking spaces and fast broadband — useful for home working. Local schools have Good Ofsted ratings and nearby amenities include a bus stop, playground and social club, making the location suitable for families.
Important factual notes: the listing is described as a new build but records show construction dated 1900–1929. Tenure details are not provided and the plot is small. The wider area registers higher deprivation levels; prospective buyers should verify tenure, build age and all warranty documentation before exchange.
3 bedroom semi-detached house for sale in Colliery Road,
Creswell,
Derbyshire,
S80 4BX, S80 — £249,950 • 3 bed • 1 bath
3 bedroom semi-detached house for sale in Queens Road,
Hodthorpe,
S80 4UP, S80 — £291,000 • 3 bed • 1 bath
4 bedroom semi-detached house for sale in Queens Road,
Hodthorpe,
S80 4UP, S80 — £367,000 • 4 bed • 1 bath
4 bedroom detached house for sale in Dunholme Way, East Street, Doe Lea, Chesterfield, S44 — £314,995 • 4 bed • 2 bath • 1377 ft²
3 bedroom semi-detached house for sale in Colliery Road,
Creswell,
Derbyshire,
S80 4BX, S80 — £195,950 • 3 bed • 1 bath
4 bedroom detached house for sale in Queens Road,
Hodthorpe,
S80 4UP, S80 — £349,995 • 4 bed • 1 bath






























