Chain‑free two‑bed bungalow with large garden and garage — ideal for downsizers.
Chain free freehold bungalow, guide price £475k–£500k
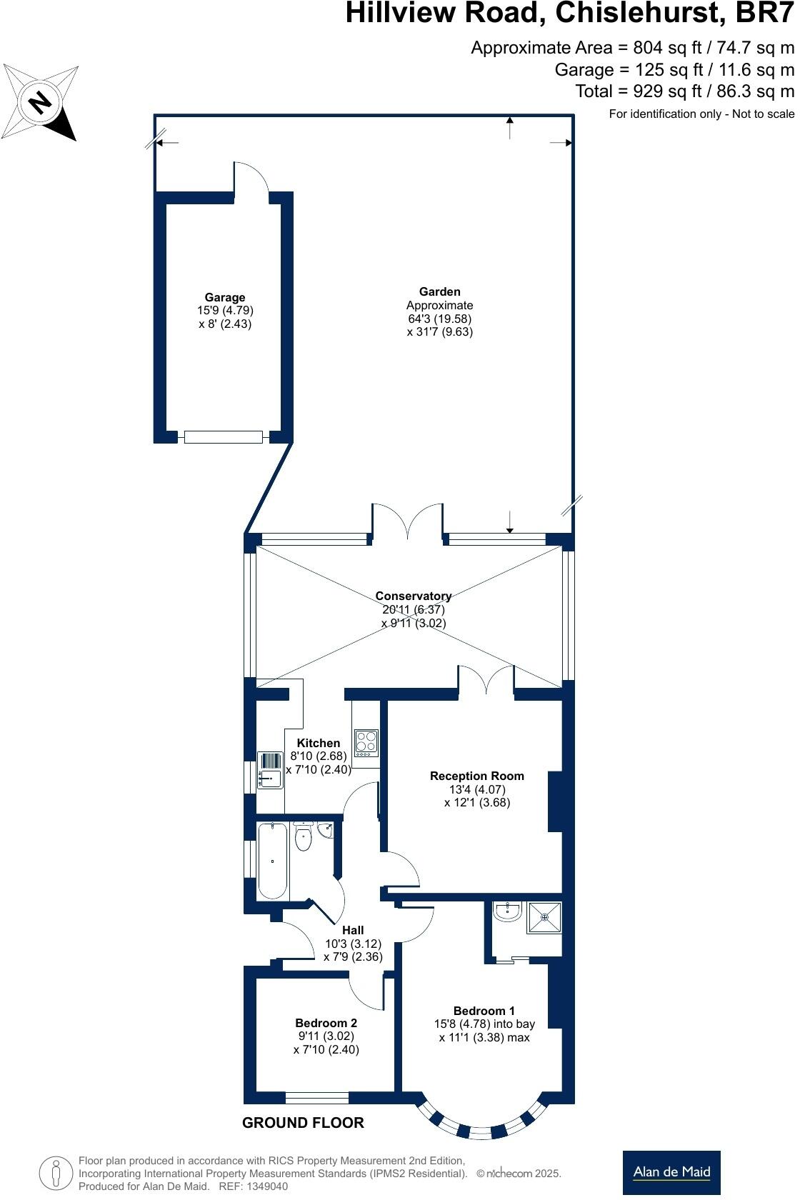
This semi‑detached, single‑storey bungalow in Chislehurst offers a straightforward, adaptable home for downsizers or buyers seeking one-level living with generous outside space. The reception room flows into a large conservatory, creating a bright living area that opens onto a substantial rear garden (approx. 64' x 31'), ideal for outdoor entertaining or vegetable beds. The property includes two bedrooms, one with an en-suite shower room, plus a separate family bathroom and a practical fitted kitchen.
Externally there is a detached single garage and off‑street parking for several vehicles. The bungalow sits on a decent plot with mature rear boundaries, providing privacy and scope for landscaping or modest garden projects. Built between 1930–1949 with solid brick walls and double glazing (installation date unknown), the house retains period character but would benefit from some updating and modernisation to maximise its potential.
Sold freehold and offered chain free with a guide price of £475,000–£500,000, this property suits buyers seeking low‑step access, convenient layout and a large garden in an affluent, well‑served suburb. Potential exists for modest extension or conversion work (subject to planning), but assume basic retrofit needs: possible insulation improvements to solid walls and cosmetic upgrades internally. Local amenities, good primary schools and transport links are close by, and flood risk is reported as none.
2 bedroom bungalow for sale in Hallam Close, Chislehurst, BR7 — £650,000 • 2 bed • 1 bath • 952 ft²
3 bedroom bungalow for sale in Downs Avenue, Chislehurst, BR7 — £585,000 • 3 bed • 1 bath • 1064 ft²
2 bedroom bungalow for sale in Hawthorne Avenue, Biggin Hill, Westerham, TN16 — £475,000 • 2 bed • 1 bath • 943 ft²
3 bedroom bungalow for sale in Bluebell Close, Orpington, BR6 — £825,000 • 3 bed • 1 bath • 995 ft²
2 bedroom semi-detached bungalow for sale in Mainridge Road, Chislehurst, BR7 — £475,000 • 2 bed • 1 bath • 721 ft²
2 bedroom semi-detached bungalow for sale in Bexley Lane, Sidcup, DA14 — £490,000 • 2 bed • 1 bath • 754 ft²


































































