HA7 2LD - 4 bedroom semidetached house for sale in Ennerdale Avenue,…

View on Property Piper

4 bedroom semi-detached house for sale in Ennerdale Avenue, Stanmore, Middlesex, HA7

Summary - 20 ENNERDALE AVENUE STANMORE HA7 2LD

4 bed 2 bath Semi-Detached

**Standout Features:**
- Four/Five bedrooms, with potential for flexible use
- Two bathrooms plus separate W/C and shower room
- Self-contained studio flat with rental potential (Council Tax Band A)
- Spacious living areas and modern kitchen with island
- Large rear garden with covered patio area
- Off-street parking for multiple vehicles
- Close to local schools and transport links
- Freehold title, chain-free sale

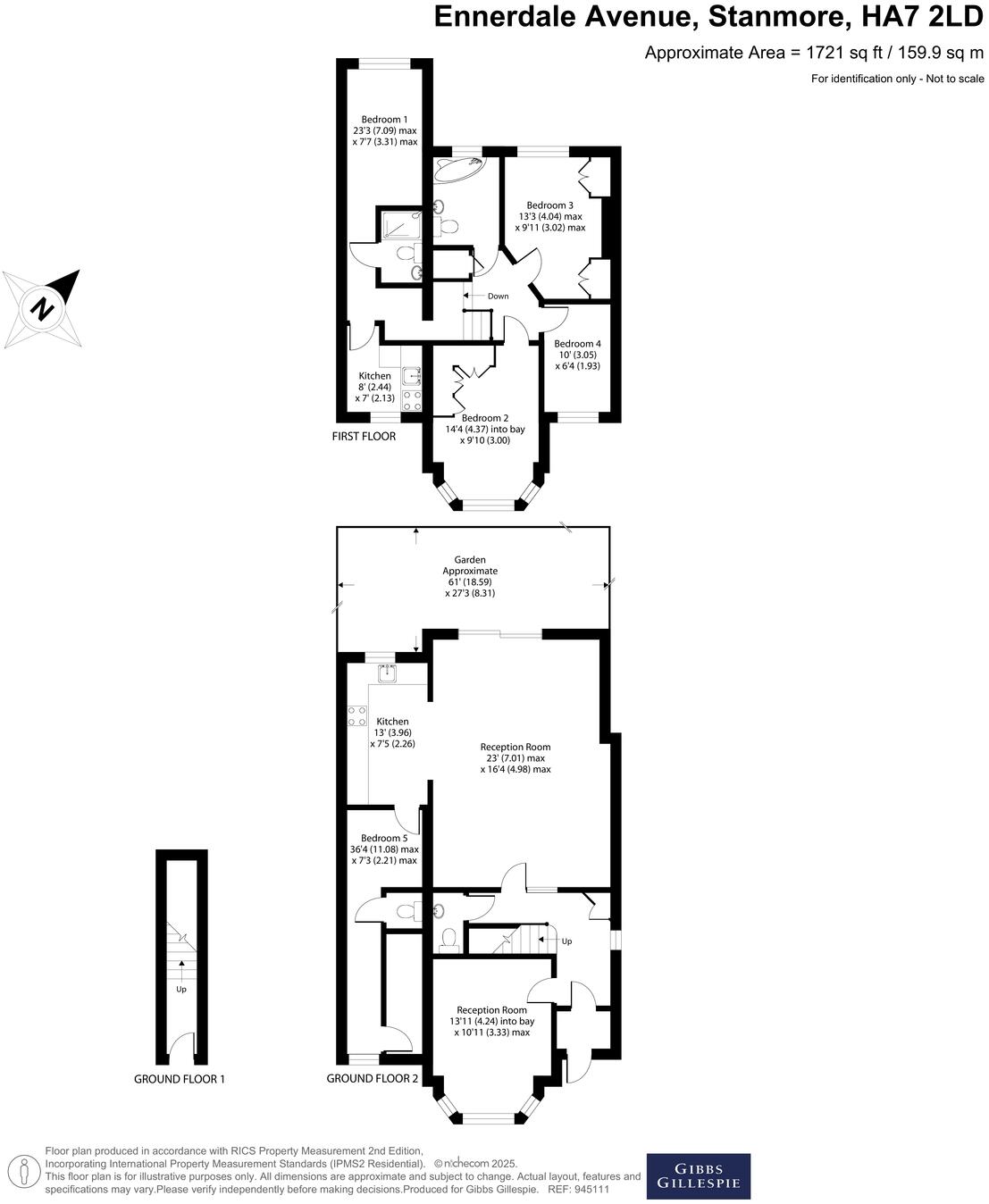
Discover this charming semi-detached family home in a desirable location, ideal for families or investors seeking rental opportunities. Spanning over 1,721 Sq. Ft, it boasts a welcoming entrance, a spacious reception with a feature bay window, and a modern kitchen that flows into a dining area—perfect for entertaining. The first floor accommodates four double bedrooms, including built-in wardrobes in some, alongside a generous family bathroom.

Outdoors, the expansive rear garden is mainly laid to lawn with a covered patio, inviting summer gatherings, while a self-contained studio flat offers potential rental income or easy conversion back into the main living space. With low crime rates and excellent transport links, this property presents a unique chance to settle in a flourishing community. Explore your future here—opportunities like this don't last long!

Property Details

Brochure Descriptions

Image Descriptions

Floorplan Description

Rooms

Textual Property Features

Detected Visual Features

EPC Details

Nearby Schools

Nearest Bars And Restaurants

,,,,}

Nearest General Shops

,,}

Nearest Grocery shops

,,}

Nearest Supermarkets

,,}

Nearest Religious buildings

,,}

Nearest Medical buildings

,,,}

Nearest Airports

,}

Nearest Leisure Facilities

,,,,}

Nearest Tourist attractions

,,}

Nearest Train stations

,,,,}

Nearest Bus stations and stops

,,,,}

Nearest Hotels

,,}

Tags

Local Market Stats

AirBnB Data

Similar Properties

Meta

High Res Images

Compatible Images

Low res Images

Thumbnails

Raw Images

High Res Floorplan Images

Compatible Floorplan Images

Low res Floorplan Images

FloorplanImages Thumbnail

Raw Floorplan Images