Ready-to-move starter with parking and outdoor space.
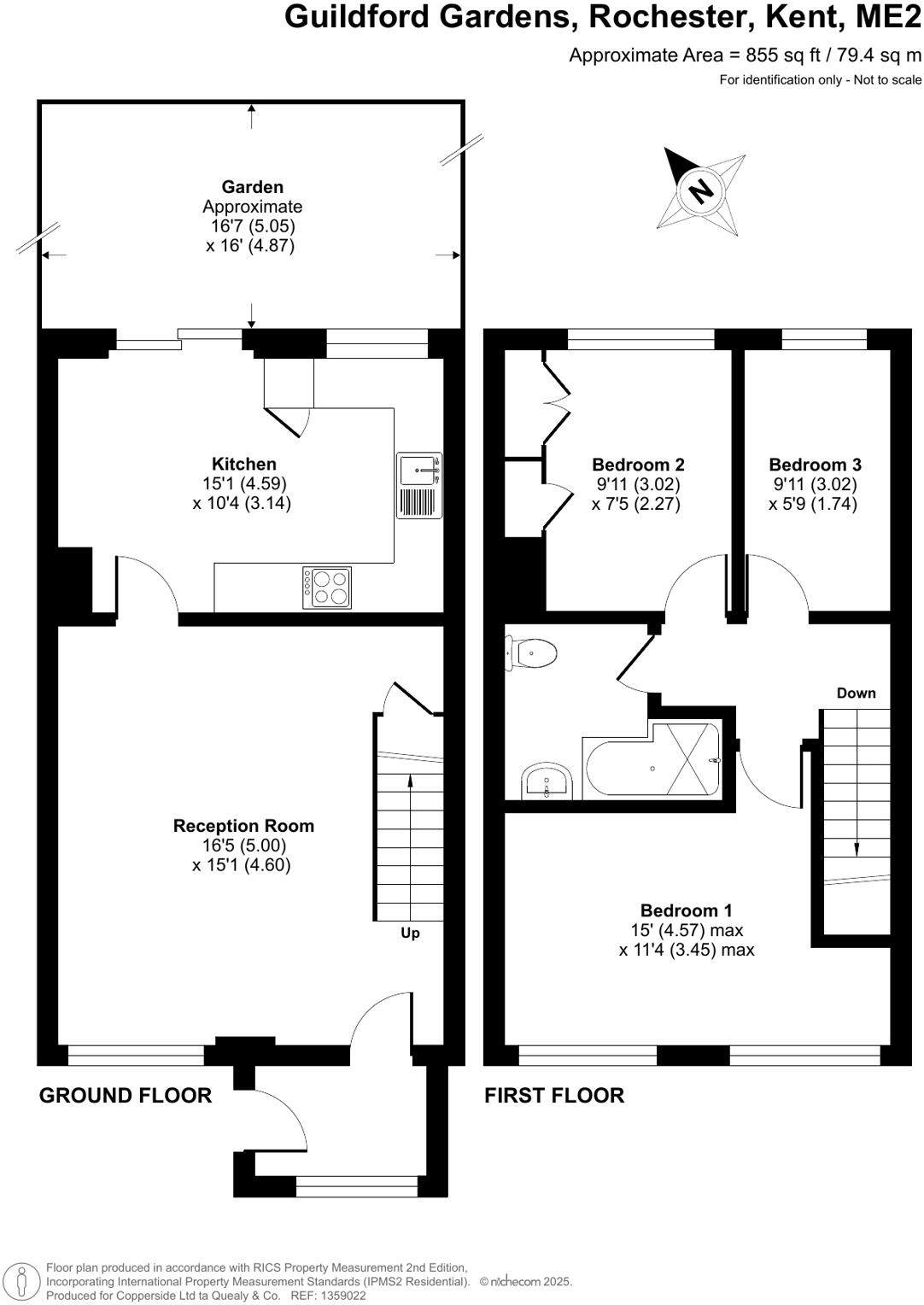
- Three bedrooms with one family bathroom
- Underfloor heating in kitchen and bathroom
- Off-road parking for two cars
- Front and rear gardens, small plot
- Chain free; freehold tenure
- Cavity walls assumed uninsulated, may need upgrades
- Built 1950–1966; some modernization suggested
- Quiet no-through road; close to M2 motorway
This three-bedroom mid-20th-century mid-terrace offers a practical, chain-free purchase for a first-time buyer. The ground floor features a spacious lounge and a modern kitchen/diner with underfloor heating, while upstairs provides three bedrooms and a single family bathroom. Off-road parking for two cars and both front and rear gardens add useful outdoor space for a growing household.
Positioned on a quiet no-through road, the home sits close to the M2 for straightforward commuting and nearby amenities. Broadband and mobile signal are strong and there is no flooding risk, making the property sensible for everyday living or to let. The property comes with freehold tenure and low council tax.
There are some straightforward areas to address: the building dates from 1950–66 and the cavity walls are assumed uninsulated, so additional insulation or energy upgrades may be needed to reduce running costs. The plot is small and the house is average sized at about 855 sq ft, with only one bathroom for three bedrooms. The front hedge and some internal updating are suggested for buyers seeking a more finished presentation.
Overall this is a practical, affordable starter home or rental investment with immediate occupancy potential, parking, outdoor space and clear scope for value-adding improvements.
3 bedroom terraced house for sale in Highlands Close, ROCHESTER, ME2 — £300,000 • 3 bed • 1 bath • 949 ft²
3 bedroom terraced house for sale in Weller Avenue, ROCHESTER, Kent, ME1 — £300,000 • 3 bed • 1 bath • 735 ft²
3 bedroom terraced house for sale in Allington Drive, Strood, Rochester, Kent, ME2 — £350,000 • 3 bed • 1 bath • 902 ft²
2 bedroom house for sale in St. Albans Road, Rochester, Kent, ME2 — £290,000 • 2 bed • 1 bath • 656 ft²
3 bedroom terraced house for sale in St Williams Way, Rochester, ME1 — £325,000 • 3 bed • 1 bath • 663 ft²
2 bedroom terraced house for sale in Lodge Hill Lane, Rochester, ME3 — £290,000 • 2 bed • 1 bath • 732 ft²


















































































