Comfortable, low-maintenance living close to Fleet station and shops.
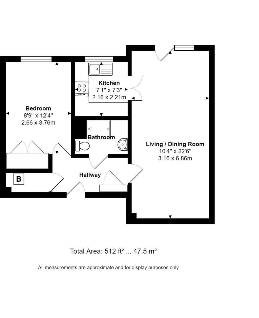
One double bedroom with built-in wardrobe
22'6" living/dining room with Juliet balcony
Modern fitted kitchen with integrated appliances
Refitted shower room with large walk-in shower
Lift access, video entry and communal lounge
Well-maintained communal gardens and parking
Leasehold: 101 years remaining; service charge ~£3,176 p.a.
Electric storage heating; building c.2003–2006
A bright, well-presented one-bedroom retirement apartment in the heart of Fleet, ideal for someone seeking a low-maintenance town-centre base. The 22'6" living/dining room with Juliet balcony brings generous natural light, and a modern fitted kitchen includes integrated appliances for immediate use.
The apartment benefits from a refitted walk-in shower room, built-in bedroom wardrobe and additional hallway storage, plus lift access to the first floor. Residents have use of a communal lounge, well-kept gardens and off-street parking within a secure block with video entry.
Practical points to note: the property is leasehold with 101 years remaining and an average service charge of £3,176 per year. Heating is by electric storage heaters and the building was constructed c.2003–2006. The neighbourhood is very affluent but local crime is reported as above average.
This apartment suits downsizers or retirees who value central convenience — shops, doctors and Fleet station are all close by — and who prefer ready-to-live-in accommodation with communal facilities and a social community.
1 bedroom retirement property for sale in Branksomewood Road, Fleet, Hampshire, GU51 — £100,000 • 1 bed • 1 bath • 348 ft²
1 bedroom retirement property for sale in Kings Place, Fleet, GU51 — £168,000 • 1 bed • 1 bath • 646 ft²
1 bedroom apartment for sale in Branksomewood Road, Fleet, GU51 — £105,000 • 1 bed • 1 bath • 451 ft²
1 bedroom apartment for sale in Kings Place, Albert Street, Fleet, GU51 — £130,000 • 1 bed • 1 bath • 534 ft²
2 bedroom retirement property for sale in Kings Place, Fleet, GU51 — £225,000 • 2 bed • 2 bath • 978 ft²
1 bedroom apartment for sale in Pegasus Court, Fleet, Hampshire, GU51 — £160,000 • 1 bed • 1 bath • 489 ft²










































































