Renovated family home near Parrs Wood amenities and good schools.
4 double bedrooms across traditional 1930s floorplan
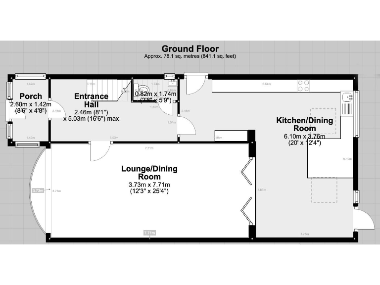
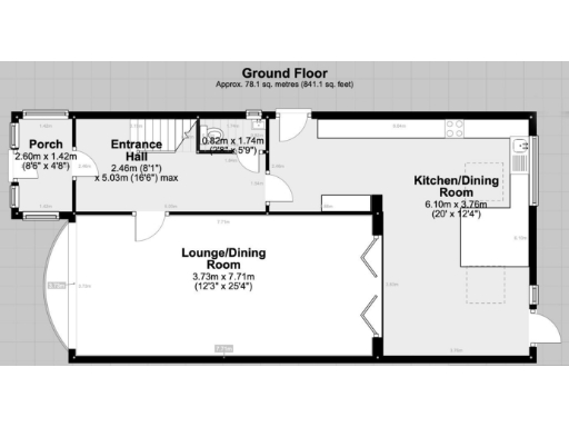
Ground-floor extension created large fitted kitchen/diner
Newly renovated interior; double glazing and gas central heating
Re-roofed five years ago; stylish fixtures and stained-glass feature
Off-street parking for 6+ cars; decent plot and rear garden
Overall size listed as small (733 sq ft); rooms may feel compact
Front porch requires repair/attention
Area shows deprivation despite very low local crime and good schools
This extended 1930s semi-detached home offers four double bedrooms and a generous ground-floor kitchen/diner created by a recent extension. Renovated throughout with new fixtures, double glazing and gas central heating, the house blends period character — bay windows, stained glass — with contemporary finishes and practical laminate floors.
Externally the plot is a strong asset: a decent garden and off-street parking reportedly for six-plus cars make it rare for the area and useful for larger families or owners with multiple vehicles. The property was fully re-roofed five years ago and benefits from fast broadband and excellent mobile signal, handy for home working or streaming.
Buyers should note the overall listed size is small (733 sq ft), so despite the four double bedrooms space will feel compact in places; the front porch also needs work. The area has pockets of deprivation, although local crime is very low and nearby schools and Parrs Wood’s shops, restaurants and leisure facilities provide clear family-focused conveniences.
This freehold, traditionally laid-out home is best for families wanting character combined with recent upgrades, or buyers seeking a renovated period house close to amenities. It offers immediate move-in potential with a small number of visible maintenance items to address.
3 bedroom semi-detached house for sale in Parrs Wood Avenue, Didsbury, Manchester, M20 — £625,000 • 3 bed • 2 bath • 1400 ft²
4 bedroom semi-detached house for sale in Parrs Wood Road, Didsbury, M20 — £605,000 • 4 bed • 2 bath • 1617 ft²
3 bedroom semi-detached house for sale in Parrs Wood Road, Didsbury, M20 — £485,000 • 3 bed • 1 bath • 1154 ft²
4 bedroom semi-detached house for sale in Parrs Wood Road, Didsbury, M20 — £595,000 • 4 bed • 1 bath • 1407 ft²
4 bedroom semi-detached house for sale in Lancelot Road, Manchester, M22 — £420,000 • 4 bed • 1 bath • 1456 ft²
3 bedroom semi-detached house for sale in Parrs Wood Road, Manchester, Greater Manchester, M20 — £330,000 • 3 bed • 1 bath • 999 ft²


























































































