**Standout Features:**
- Chain-free period terraced house
- Walking distance to Kenley and Purley stations—ideal for commuters
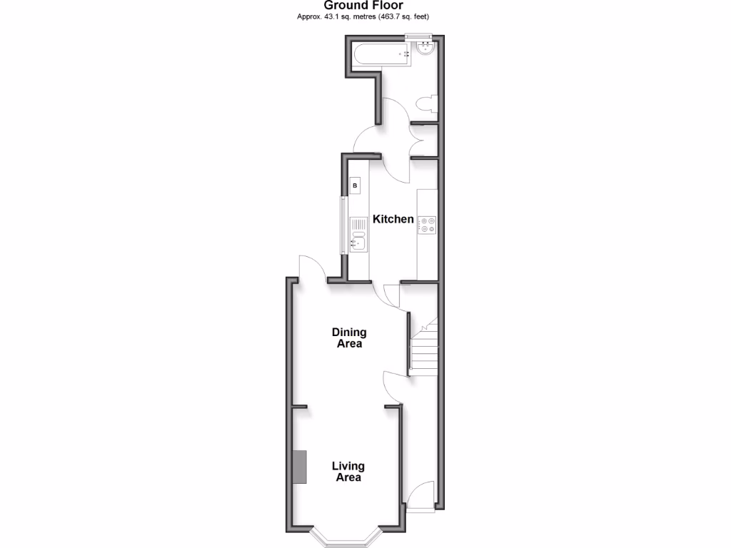
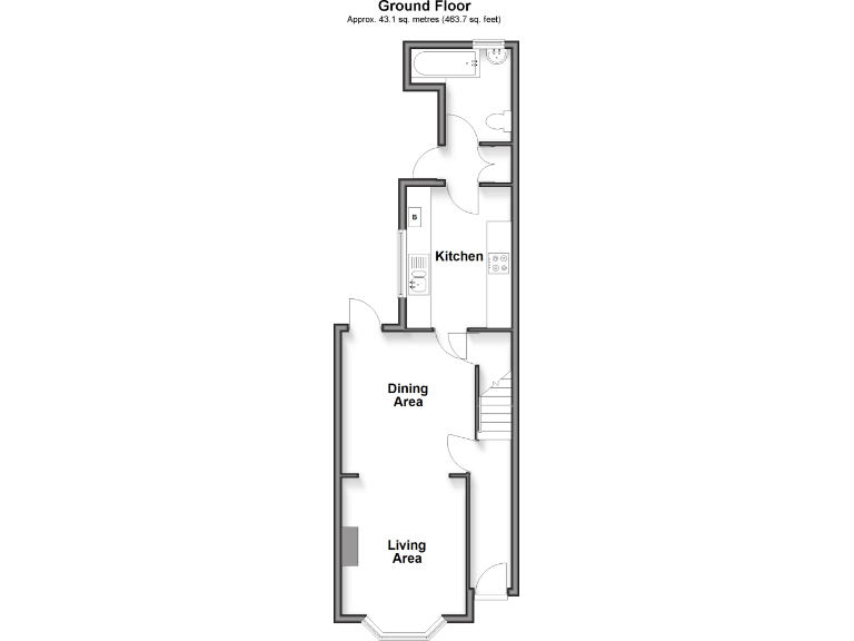
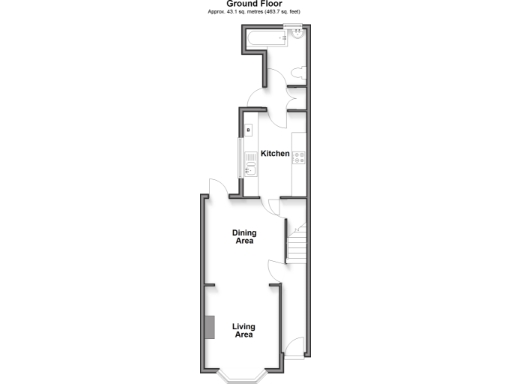
- Spacious open plan lounge/dining room with bay window
- Modern kitchen with integrated appliances
- Convenient downstairs bathroom with an additional cloakroom upstairs
- Close proximity to highly-rated local schools
- Private rear garden suitable for family enjoyment
- Victorian architectural features providing unique character
**Potential Concerns:**
- Requires cosmetic renovation to enhance external appearance
- Solid brick walls may lack insulation
Welcome to this charming Victorian terraced house situated on the borders of Kenley and Purley, perfect for young families and commuters alike. This home offers an inviting open-plan lounge and dining area, highlighted by a beautiful bay window, and a modern kitchen with sleek, white cabinets and integrated appliances. With three bedrooms, a downstairs bathroom, and an upstairs cloakroom, this property yields both comfort and practicality for family living.
The level rear garden provides an ideal outdoor retreat, while excellent local schools—such as the outstanding Harris Primary Academy—make this community highly sought after. This chain-free property presents a fantastic opportunity, whether you're a first-time buyer or a savvy investor. The property does require some cosmetic renovation; however, with its great potential and strategic location, it won't be on the market for long. Don’t miss out on this rare find—schedule a viewing today and envision the possibilities!
3 bedroom terraced house for sale in Lower Road, Kenley, CR8 — £400,000 • 3 bed • 1 bath • 840 ft²
3 bedroom terraced house for sale in Lower Road, Kenley, CR8 — £475,000 • 3 bed • 2 bath • 1166 ft²
3 bedroom end of terrace house for sale in Famet Gardens, Kenley, CR8 — £400,000 • 3 bed • 1 bath • 743 ft²
2 bedroom terraced house for sale in Lower Road, Kenley, Surrey, CR8 — £425,000 • 2 bed • 1 bath • 894 ft²
2 bedroom semi-detached house for sale in Little Roke Avenue, Kenley, CR8 — £425,000 • 2 bed • 1 bath • 792 ft²
3 bedroom end of terrace house for sale in Little Roke Road, Kenley, CR8 — £425,000 • 3 bed • 1 bath • 958 ft²










































































