Low-maintenance one-bedroom retirement flat close to Altrincham town centre.
First-floor retirement apartment with lift access
Views over maintained communal garden
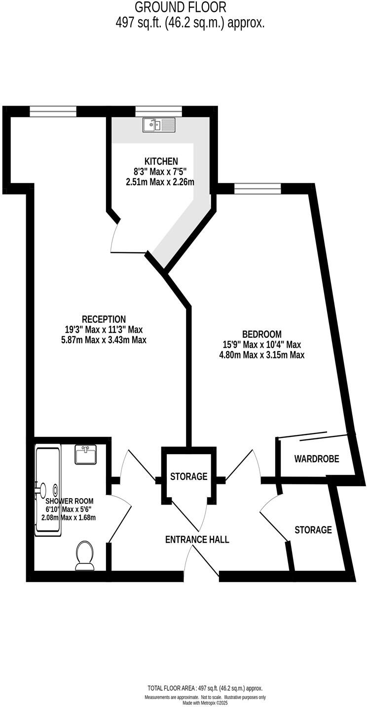
One double bedroom with built-in wardrobes
Modern walk-in shower; fitted kitchen
Leasehold: 109 years remaining
Ground rent approximately £425 per year
Electric storage and room heaters (no gas)
Sale subject to Grant of Probate (potential delays)
This first-floor retirement apartment offers a low-maintenance home for the over-60s in a well-kept modern development, just a short walk from Altrincham town centre. The bright living room and bedroom with built-in wardrobes give comfortable, practical space, while windows look onto a landscaped public garden for a peaceful outlook.
Practical features include lift access, off-street visitor parking, a communal lounge, and a guest suite (additional charges apply). The apartment has a fitted kitchen and a contemporary walk-in shower room designed for ease of use. Broadband speeds are fast and mobile signal is excellent, helping you stay connected.
Important facts and drawbacks: the property is leasehold with 109 years remaining and an annual ground rent of £425. Heating is by electric storage and room heaters rather than gas, which may affect running costs for some buyers. The sale is a Probate transaction, which can add time to completion—buyers should factor potential delays into their plans.
Overall, this well-presented retirement flat suits downsizers looking for a convenient, low-upkeep base near local shops, transport and good local amenities. The modern build, secure setting, and communal facilities offer comfort, though buyers should note the leasehold terms, ground rent, and electric heating when assessing long-term costs.
2 bedroom retirement property for sale in Regent Road, Altrincham, Greater Manchester, WA14 — £230,000 • 2 bed • 1 bath • 731 ft²
1 bedroom retirement property for sale in Hazel Road, Altrincham, WA14 — £138,000 • 1 bed • 1 bath • 431 ft²
1 bedroom apartment for sale in 3 Hazel Road, Altrincham, WA14 — £130,000 • 1 bed • 1 bath • 516 ft²
2 bedroom apartment for sale in Regent Road, Altrincham, WA14 — £209,000 • 2 bed • 1 bath • 688 ft²
2 bedroom retirement property for sale in Groby Road, Altrincham, WA14 — £325,000 • 2 bed • 2 bath • 859 ft²
2 bedroom apartment for sale in Easingwold, Regent Road, Altrincham, WA14 — £200,000 • 2 bed • 1 bath • 576 ft²






















































