Quiet cul‑de‑sac retreat with garage, garden and easy M20 links.
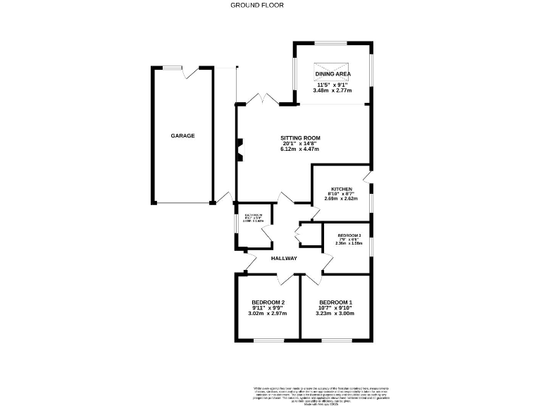
- Detached single‑storey bungalow with attached garage and driveway parking
- Low‑maintenance rear garden with patio and raised lawn
- Large sitting room with adjoining dining area; skylight in dining room
- Compact overall size (~760 sq ft) suited to downsizers or small families
- Only one family bathroom; three bedrooms (two doubles, one single)
- Needs updating/renovation in places despite recent kitchen/dining work
- Double glazing mostly pre‑2002; mid‑late 20th century construction
- EPC C (69); mains services connected, gas central heating
This three-bedroom detached bungalow on Wickenden Crescent offers single‑storey living in a quiet Willesborough cul‑de‑sac. The layout includes a large sitting room with dining area, a modernised dining room with skylight, a fitted kitchen, and a family bathroom serving all bedrooms. A driveway and attached garage provide off‑street parking and storage; the rear garden is low‑maintenance with a patio and raised lawn.
The property is well presented in parts — the dining room and kitchen have recent updates and the home benefits from gas central heating and double glazing to most windows. Its EPC rating is C (69) and main services are connected. The plot and footprint are compact (approximately 760 sq ft overall) which suits downsizers or small families seeking manageable, single‑level accommodation.
There are practical considerations to note. The description records that the bungalow needs renovation in places; some windows and fittings predate modern standards (double glazing installed before 2002) and there is only one bathroom. Built in the late 1960s/early 1970s, the house may benefit from cosmetic and systems updating to match contemporary tastes and accessibility needs.
Location is a genuine strength: very low local crime, excellent mobile and broadband, quick access to the M20, and several well‑rated primary and secondary schools nearby. For buyers seeking a comfortable, single‑storey home with scope to refresh, this property offers a convenient, private package with garage and garden in a pleasant suburban setting.
3 bedroom bungalow for sale in Wickenden Crescent, Willesborough, Ashford, Kent, TN24 — £330,000 • 3 bed • 1 bath • 833 ft²
3 bedroom detached bungalow for sale in Harvey Road, Willesborough, Ashford TN24 — £450,000 • 3 bed • 1 bath • 764 ft²
2 bedroom semi-detached bungalow for sale in Mabledon Avenue, Willesborough, TN24 — £325,000 • 2 bed • 1 bath • 636 ft²
3 bedroom detached bungalow for sale in Quantock Drive, Ashford, Kent, TN24 — £375,000 • 3 bed • 1 bath • 768 ft²
3 bedroom detached bungalow for sale in Quantock Drive, Ashford TN24 — £375,000 • 3 bed • 1 bath • 871 ft²
2 bedroom bungalow for sale in Birling Road, Willesborough, TN24 — £240,000 • 2 bed • 1 bath • 786 ft²










































































