Move-in ready single-level living with a versatile garden workspace near the seafront.
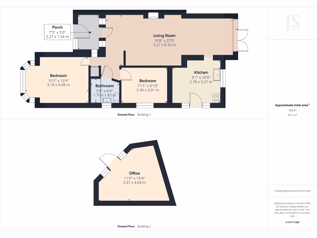
Two double bedrooms with good-sized principal bedroom
27ft open-plan living room with dining space and rear doors
Contemporary kitchen; modern fully tiled family bathroom
Detached powered garden office — great for working from home
Off-road parking and manageable lawned front and rear gardens
Short walk to the beach and Widewater Lagoon nature reserve
Built 1950s–60s; some systems (glazing/boiler) unspecified
Single bathroom only; modest footprint (approximately 806 sq ft)
Set a short stroll from the beach, this well-presented two-bedroom semi-detached bungalow offers single-level living with a generous 27ft living room and a versatile garden office. The accommodation feels bright and contemporary, with a modern kitchen and fully tiled family bathroom, making it particularly suitable for those looking to downsize without compromising on social space.
The rear garden and detached garden room are genuine extras — the cabin has full power and lighting and works well as a home office, hobby room or quiet retreat. Off-road parking to the front and a manageable lawned garden add convenience and low-maintenance outdoor space. The property is freehold and enjoys easy access to local amenities, coastal walks and commuter routes.
Practical facts are straightforward: the bungalow dates from the 1950s–60s, has cavity-filled walls, double glazing (install date unknown) and gas central heating via a boiler and radiators. While presented in good order, buyers should note the single bathroom and that some services (glazing and boiler age) are not specified — there may be future servicing or updating costs.
In short, this is a comfortable, seaside-adjacent home for someone seeking single-floor living with outdoor versatility and easy transport links. It suits buyers who prefer a move-in-ready property but accept modest ongoing maintenance or selective modernisation in due course.
3 bedroom bungalow for sale in West Way, Lancing, West Sussex, BN15 — £375,000 • 3 bed • 2 bath • 788 ft²
3 bedroom semi-detached bungalow for sale in Barfield Park, Lancing, BN15 — £400,000 • 3 bed • 1 bath • 1348 ft²
3 bedroom detached bungalow for sale in Manor Way, Lancing, BN15 0QU, BN15 — £370,000 • 3 bed • 1 bath • 921 ft²
2 bedroom semi-detached bungalow for sale in Grafton Gardens, Sompting, BN15 — £340,000 • 2 bed • 1 bath • 886 ft²
2 bedroom bungalow for sale in Steepdown Road, Sompting, Lancing, West Sussex, BN15 — £375,000 • 2 bed • 1 bath • 672 ft²
2 bedroom semi-detached bungalow for sale in Bristol Avenue, Lancing, BN15 — £325,000 • 2 bed • 1 bath • 434 ft²






























































