S8 7EA - 3 bedroom semidetached house for sale in Crawshaw Grove, Sh…

View on Property Piper

3 bedroom semi-detached house for sale in Crawshaw Grove, Sheffield, S8

Summary - 71, Crawshaw Grove S8 7EA

3 bed 1 bath Semi-Detached

**Standout Features:**
- **Spacious Layout:** Three-bedroom semi-detached home with additional attic bedroom and en-suite.
- **Open-Plan Living:** Contemporary dining kitchen with integrated appliances and breakfast bar.
- **Relaxing Outdoor Space:** Large south-easterly facing garden featuring a decked area and children's playhouse.
- **Parking Convenience:** Driveway and garage for off-road parking.
- **Chain-Free Sale:** Streamlined purchasing with no onward chain.

**Potential Concerns:**
- **Maintenance Considerations:** Check for age-related wear typical of 1930s constructions.
- **Need for Personal Touch:** The décor may require updates to reflect personal style.

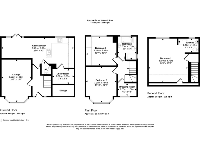
This light and airy three-bedroom semi-detached house in the sought-after Greenhill area of Sheffield is perfect for growing families. Entering the home, you’re greeted by a welcoming hallway leading into a charming bay-fronted lounge adorned with plantation shutters, creating a cozy atmosphere. The expansive open-plan dining kitchen serves as the heart of the home, outfitted with modern integrated appliances, sleek quartz countertops, and an inviting breakfast bar—ideal for entertaining.

Upstairs, you’ll find two well-sized bedrooms, a versatile office/dressing room, and an impressively large attic bedroom with its own en-suite, offering ample comfort and privacy. The family bathroom features a stylish four-piece suite that remarkably balances function and elegance.

Outside, enjoy a spacious, well-maintained garden designed for leisure and outdoor living, complete with a decked area perfect for summer barbecues and a functional lawn space for children’s play. With a paved driveway ensuring off-road parking and its proximity to local amenities, schools, and transport links, this home combines convenience and comfort in an affluent neighbourhood. Act fast—properties like this, with significant living space and character, don’t stay on the market for long!

Property Details

Brochure Descriptions

Image Descriptions

Floorplan Description

Rooms

Textual Property Features

Detected Visual Features

EPC Details

Nearby Schools

Nearest Bars And Restaurants

,,,,}

Nearest General Shops

,,}

Nearest Grocery shops

,,}

Nearest Supermarkets

,,}

Nearest Religious buildings

,,}

Nearest Medical buildings

,,,}

Nearest Leisure Facilities

,,,,}

Nearest Tourist attractions

,,}

Nearest Train stations

,,,,}

Nearest Bus stations and stops

,,,,}

Nearest Hotels

,,}

Tags

Local Market Stats

AirBnB Data

Similar Properties

Meta

High Res Images

Compatible Images

Low res Images

Thumbnails

Raw Images

High Res Floorplan Images

Compatible Floorplan Images

Low res Floorplan Images

FloorplanImages Thumbnail

Raw Floorplan Images