**Standout Features:**
- **Freehold Investment**: Comprises 5 retail units with a gross annual income of £43,600.
- **Prime Location**: Situated in Newark's bustling town center, benefiting from high foot traffic.
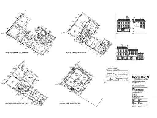
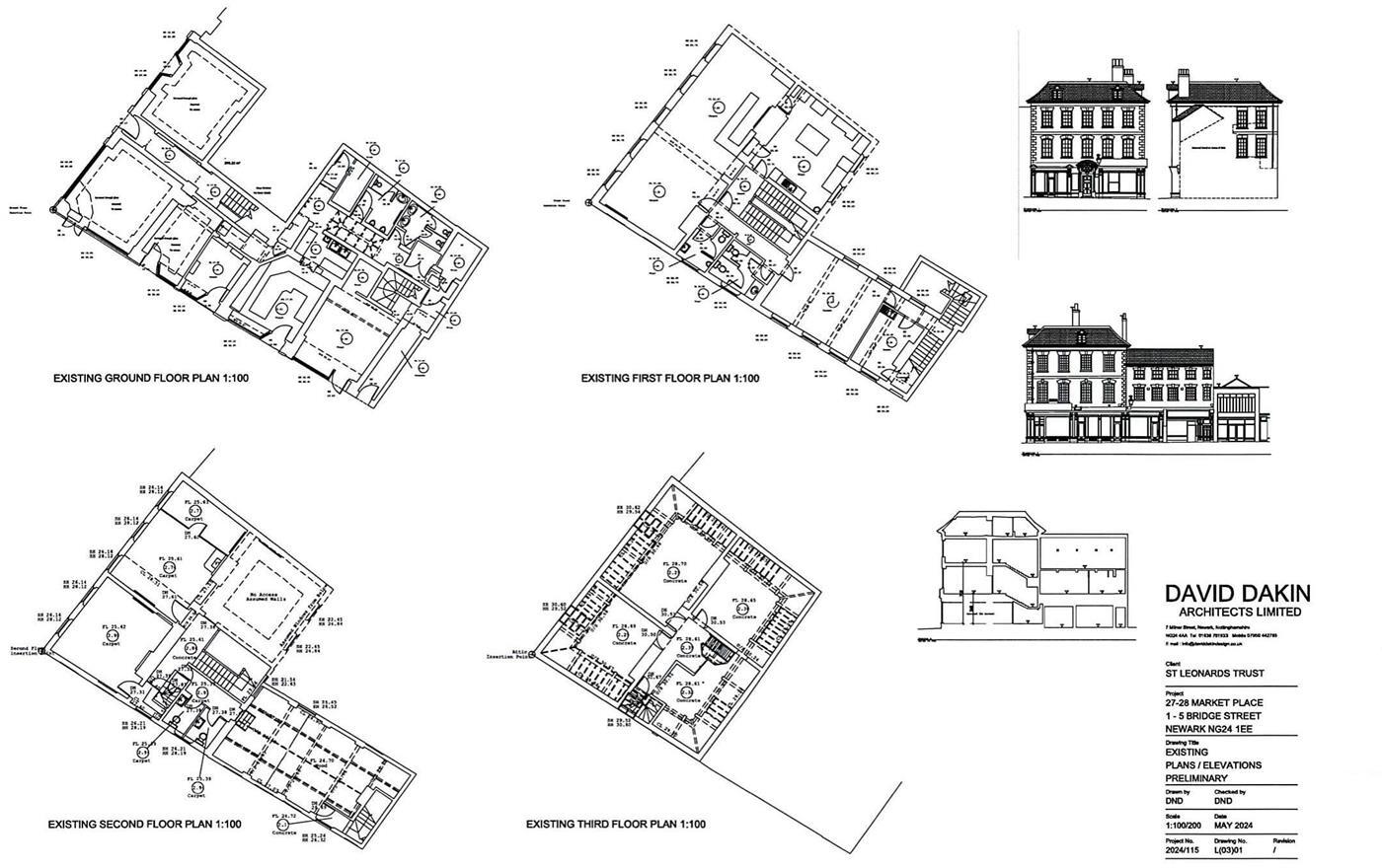
- **Historic Significance**: Grade II* Listed Building, showcasing Georgian architecture.
- **Development Potential**: Pre-application advice received for converting upper floors into 6 residential flats.
- **Accessibility**: Excellent transport links; closely located to railway services to London and Edinburgh.
**Summary:**
Discover a remarkable investment opportunity in a Grade II* listed building, located in the vibrant town center of Newark. This prominent property currently houses five retail units that generate a steady income of £43,600 per annum, ensuring a sound financial footing for potential investors. With the option to convert the upper floors into six flats (subject to planning consent), this property invites opportunities for further growth and development in a thriving market town with a catchment population of over 113,000.
The striking Georgian façade and high ceilings add unique character and charm, making it an attractive setting for businesses. The site enjoys a prime location on bustling Bridge Street and Market Place, with abundant walkable amenities, including cafes, shops, and leisure facilities just a stone's throw away. While the listed status may impose restrictions on renovations, the property's historic allure and strategic positioning ensure that it will remain a coveted asset. Act quickly, as opportunities like this don’t last long—envision the possibilities for this landmark property in the heart of Newark.
Commercial property for sale in Kirk Gate, Newark, NG24 — £230,000 • 1 bed • 1 bath • 1555 ft²
Office for sale in Central Buildings, Middle Gate, Newark, Nottinghamshire, NG24 1AZ, NG24 — £495,000 • 1 bed • 1 bath • 10968 ft²
Commercial property for sale in Queens Head Court, Newark, NG24 — £250,000 • 1 bed • 1 bath • 1592 ft²
Commercial property for sale in Boar Lane, Newark, NG24 — £125,000 • 1 bed • 1 bath • 835 ft²
Commercial property for sale in Church Street, Newark, NG24 — £100,000 • 1 bed • 1 bath • 884 ft²
Commercial property for sale in Castlegate, Newark, NG24 — £230,000 • 1 bed • 1 bath • 2150 ft²


























